Duwboot 89

Houten

Huurprijs: € 140.000,- Per jaar

Omschrijving

Vrijstaand modern en duurzaam bedrijfspand (A+ label) bestaande uit een ruime bedrijfshal/showroom, representatief kantoor verspreid over twee bouwlagen en een ruim afsluitbaar parkeerterrein gelegen op bedrijvenpark ‘De Meerpaal’ te Houten.

De ruime bestemming staat bedrijven tot categorie 4.2 toe alsmede perifere detailhandel, cultuur, sport en recreatie maar ook functies in de gezondheidszorg en onderwijs.

De representatieve entree geeft toegang tot de ruime ontvangsthal met directe toegang naar de bedrijfshal/showroom en kantoren. De bedrijfshal/showroom is voorzien…

lees meer

Kenmerken

  • Soort object Bedrijfsruimte
  • Status Te huur
  • Totale oppervlakte 2.950 m2
  • In units vanaf 1475 m2
Meer kenmerken

Vragen of opmerkingen?

Neem vrijblijvend contact op met Jeroen van der Wal.

Brochure aanvragen?

Vul onderstaande gegeven in en download de brochure van dit object.

    Deel dit bedrijfspand:

    Omschrijving

    Vrijstaand modern en duurzaam bedrijfspand (A+ label) bestaande uit een ruime bedrijfshal/showroom, representatief kantoor verspreid over twee bouwlagen en een ruim afsluitbaar parkeerterrein gelegen op bedrijvenpark ‘De Meerpaal’ te Houten.

    De ruime bestemming staat bedrijven tot categorie 4.2 toe alsmede perifere detailhandel, cultuur, sport en recreatie maar ook functies in de gezondheidszorg en onderwijs.

    De representatieve entree geeft toegang tot de ruime ontvangsthal met directe toegang naar de bedrijfshal/showroom en kantoren. De bedrijfshal/showroom is voorzien van gecoate vloer, 2 overheaddeuren en systeemplafonds. De kantoren en kantine op de begane grond en eerste verdieping zijn modern en hoogwaardig ingericht, o.a. voorzien van airconditioning en systeemplafonds met ingebouwde geluidinstallatie. Er zijn 24 parkeerplaatsen op eigen afsluitbaar terrein.

    In dezelfde straat is het grootschalige winkelcentrum ‘De Meerpaal’ gelegen met winkels van Bever Sport, Frans de Witte, Daka sport en lifestyle, Prominent, Buitenhof Tuinmeubelen en het eetcafé Bickel Beer. Bedrijventerrein De Meerpaal heeft als doel om een duurzaam en veilig ondernemersklimaat te bieden. Er wordt dan ook veel aandacht besteed aan de groenvoorzieningen en het onderhoud van het terrein, om zo een aangename werkomgeving te creëren voor de bedrijven die er gevestigd zijn.

    Bereikbaarheid
    Met eigen vervoer
    Het bedrijventerrein is goed bereikbaar via de snelwegen A27 en A12, en ligt op korte afstand van het treinstation Houten.
    De dichtstbijzijnde opritten van de snelweg:
    - A27 met 3 min reistijd over een route van 1,6 km
    - A12 met 8 min reistijd over een route van 7,7 km
    - A2 met 13 min reistijd over een route van 9,3 km

    Het openbaar vervoer
    Ook de bereikbaarheid per openbaar vervoer is goed. Op ca. 500 meter bevindt zich een bushalte met directe verbindingen naar Utrecht CC en Houten CS.

    Parkeren
    24 parkeerplaatsen op eigen afsluitbaar terrein. Tevens vrij parkeren langs de openbare weg.

    Aanvaarding
    Per direct.

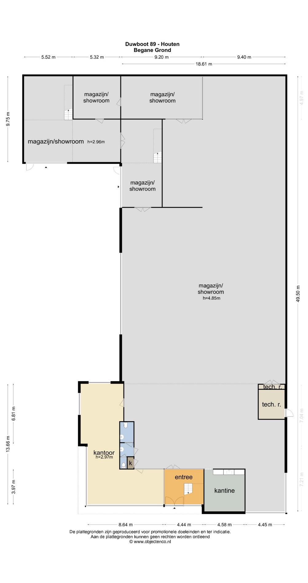
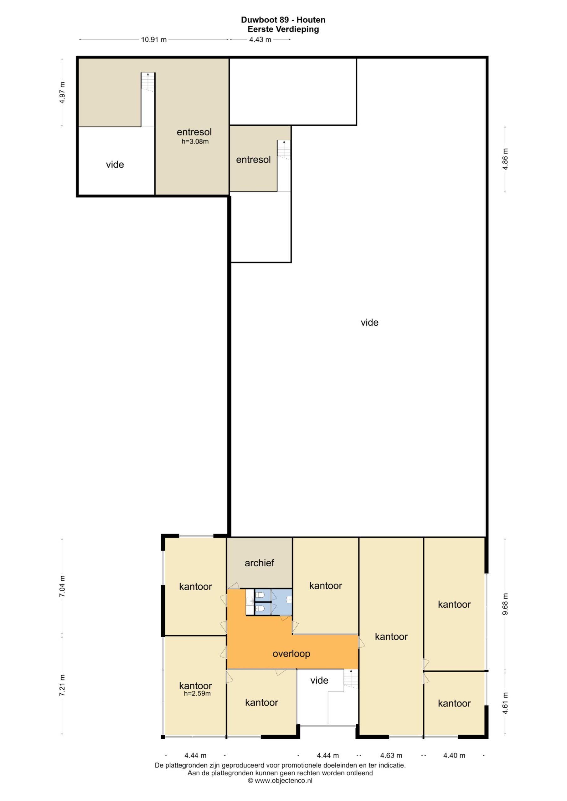
    Verhuurbaar vloeroppervlak
    Totaal ca. 1.475 m² verhuurbaar vloeroppervlak verdeeld over:
    - ca. 983 m² bedrijfs-/showroomruimte begane grond;
    - ca. 95 m² entresol verdieping;
    - ca. 78 m² kantoorruimte begane grond;
    - ca. 319 m² kantoorruimte 1e verdieping;
    Metrage conform NEN2580 meetrapport.

    Constructief/bouwkundig
    - bouwjaar: 2004
    - vrije hoogte bedrijfshal/showroom: ca. 587 cm onder stalen spanten, ca. 485 cm onder systeemplafond
    - vrije overspanning: 19 meter
    - vloerbelasting begane grond bedrijfshal: 1.500 kg/m²
    - vloerbelasting begane grond kantoren : 400 kg/m²
    - vloerbelasting 1e verdieping kantoren : 300 kg/m²

    Energieleabel
    Label A+, geldig tot en met 1-3-2033.

    Bestemming
    Van toepassing is bestemmingsplan “Het Rondeel – De Meerpaal”, artikel 3 “Bedrijventerrein “ met de functie-aanduiding: bedrijf tot en met categorie 4.2. De voor “Bedrijventerrein” aangewezen gronden zijn bestemd voor:
    - bedrijfsactiviteiten vanaf categorie 1 tot milieucategorie 4.2 voor zover deze zijn opgenomen in bijlage "Staat van bedrijfsactiviteiten” met uitzondering van inrichtingen als bedoeld in artikel 2.1 lid 3 van het Besluit omgevingsrecht;

    - perifere detailhandel: detailhandelsvestiging, die vanwege zijn omvang en/of branchering niet in een woon- of centrumgebied thuishoort en waaronder in ieder geval wordt begrepen detailhandel in volumineuze goederen, die vanwege de omvang van de gevoerde artikelen een groot oppervlak nodig heeft voor uitstalling, zoals de verkoop van auto's, boten, tuininrichtingsartikelen, (grove) bouwmaterialen, keukens en sanitair en de leisure-branche, zijnde caravan- en tentenhandel met een uitbreiding richting sport-, outdoor- en kampeerartikelen;

    - cultuur
    - sport en recreatie
    - gezondheidszorg en onderwijs
    - ondergeschikte detailhandel: niet-zelfstandige detailhandel, uitsluitend zijnde detailhandel die wordt of is gerealiseerd binnen een andere hoofdfunctie en daar zowel functioneel als naar oppervlakte en ruimtelijke uitstraling ondergeschikt aan is.
    - kantoren die ondergeschikt zijn aan en ten dienste staan van de doeleinden als genoemd hierboven, met dien verstande dat maximaal 50% van het totale bedrijfsvloeroppervlak tot een maximum van 2000 m² hiervoor gebruikt mag worden;

    Burgemeester en wethouders kunnen door middel van het verlenen van een omgevingsvergunning afwijken voor “grootschalige detailhandel” Een detailhandelsonderneming of instelling met een ondergrens van 1.000 m² winkelvloeroppervlak.

    Opleveringsniveau
    Bedrijfs-/showroomruimte
    - 2 handbediende overheaddeuren, beide met een extra intern inbraakwerend elektrisch rolluik
    - diverse loop-/vluchtdeuren
    - brandslanghaspels, –blussers en -melders
    - monolithisch afgewerkte betonvloer grotendeels v.v. coating
    - vloerverwarming in de showroom onder de kantoren, en elektrische en warm water heaters in de bedrijfsruimte
    - deels v.v. systeemplafonds v.v. tl-verlichtingsarmaturen en speakers
    - ramen in zijgevel
    - vluchtwegaanduiding en noodverlichting
    - kabelgoten v.v. elektra- en databekabeling
    - entresolvloeren
    - intercom*
    - mechanische ventilatie

    Kantoorruimte
    - entreeportaal met dubbele toegangsdeuren en stenen vloer
    - systeemplafonds met ingebouwde Led en TL verlichtingsarmaturen, spotverlichting
    - moderne stompe binnendeuren
    - afzonderlijk te regelen klimaat in kantoorkamers
    - stalen trap met houten treden naar verdieping
    - mechanische ventilatie
    - diverse airconditioning splitunits
    - kabelgoten voorzien van elektra- en databekabeling* Cat 5e
    - pantry begane grond en verdieping v.v. boven- en onderkasten, koelkast, vaatwasser, warm en koud water
    - vluchtwegaanduiding en noodverlichting
    - brandmeld-/ontruimingsinstallatie met doormeld mogelijkheid
    - alarmsysteem met doormeld mogelijkheid
    - brandslanghaspels, –blussers en -melders
    - binnen zonwering*
    - (deels) te openen ramen v.v. isolatieglas
    - toegangscontrolesysteem met tags*
    - dames- en herentoilet (waarvan 1 mindervalide), voorportaal en fontein begane grond
    - dames- en herentoilet, voorportaal en fontein verdieping
    - huidige (glazen) scheidingswanden
    - huidige vloerbedekking*
    - eigen meterkast met aansluitingen op water, warmte, elektriciteit (krachtstroom) en glasvezel Eer is geen gasaansluiting aanwezig.
    - collectieve WKO met warmtepompinstallatie v.v. vloerverwarming (1 kantoorkamer uitgezonderd aan voorzijde rechts)
    - patchkast v.v. airconditioning

    Buitenterrein
    - verhard middels klinkerbestrating
    - tuin-/gevelverlichting
    - buitenkraan
    - geheel omheind en v.v. schuifhekwerk
    - betegeld terras met tweetal picknickbanken
    - reclamezuil
    - aangelegde tuin
    - brievenbussen

    * deze voorzieningen worden huurder eenmalig in huidige staat ter beschikking gesteld.

    Vragen of opmerkingen?

    Neem vrijblijvend contact op met Jeroen van der Wal.

    Brochure aanvragen?

    Vul onderstaande gegeven in en download de brochure van dit object.

      Deel dit bedrijfspand:

      Overdracht

      • Status Te huur
      • Huurprijs € 140.000,- per jaar
      • Servicekosten -
      • BTW van toepassing Ja
      • Aanvaarding Direct

      Bouw

      • Hoofdfunctie Bedrijfsruimte
      • Soort bouw Bestaande bouw
      • Bouwjaar 2004
      • Frontbreedte 2200 cm
      • Vrije hoogte 587 cm
      • Vloerbelasting 1500 kg/m²

      Parkeergelegenheid

      • Parkeerfaciliteiten 24 parkeerplaatsen op eigen afsluitbaar terrein. Tevens vrij parkeren langs de openbare weg.
      • Niet overdekte parkeerplaatsen 24

      Oppervlakten

      • Oppervlakte totaal ca. 2.950 m2
      • Oppervlakte kantoor ca. 397 m2
      • Oppervlakte winkel ca. 1.475 m2
      • Oppervlakte bedrijfsruimte ca. 1.078 m2
      • Oppervlakte terrein ca. 631 m2

      Energielabel

      • Energielabel A+

      Omgeving

      • Ligging Bedrijventerrein De Meerpaal ligt centraal in Nederland en is goed bereikbaar via de snelwegen A27 en A12. Dit maakt het aantrekkelijk voor bedrijven die hun producten of diensten door het hele land willen distribueren. Het bedrijventerrein is goed georganiseerd en heeft een moderne infrastructuur, waaronder een glasvezelnetwerk en goede toegangswegen. Dit maakt het werken op het terrein efficiënter en productiever. Het bedrijventerrein is duurzaam en milieuvriendelijk ontworpen. Op het bedrijventerrein worden panden voorzien van warmte en koude, 100% zonder gebruik van aardgas. Het systeem bestaat uit meerdere ontrekkings- en infiltratiebronnen welke middels een distributienet met elkaar verbonden zijn.

      Bouwtypes

      Bouwtypes

      Bouwnummer

      Status

      Woonoppervlakte

      Kamers

      Prijs

      Neem vrijblijvend contact op met ons

      Plan direct een afspraak in of laat je gegevens achter. We nemen snel contact met u op om kennis te maken.

      Contact opnemen Afspraak maken bedrijven
      Waltmann