Kaatsbaan 2

Maarssen

Vraagprijs: € 1.100.000,- Kosten koper

Omschrijving

Op een van de mooiste locaties aan de Vecht, in het hart van Maarssen-Dorp, bevindt zich dit rijksmonumentale woon-/winkelpand. Het pand is gelegen op de hoek van de Kaatsbaan en Herengracht.

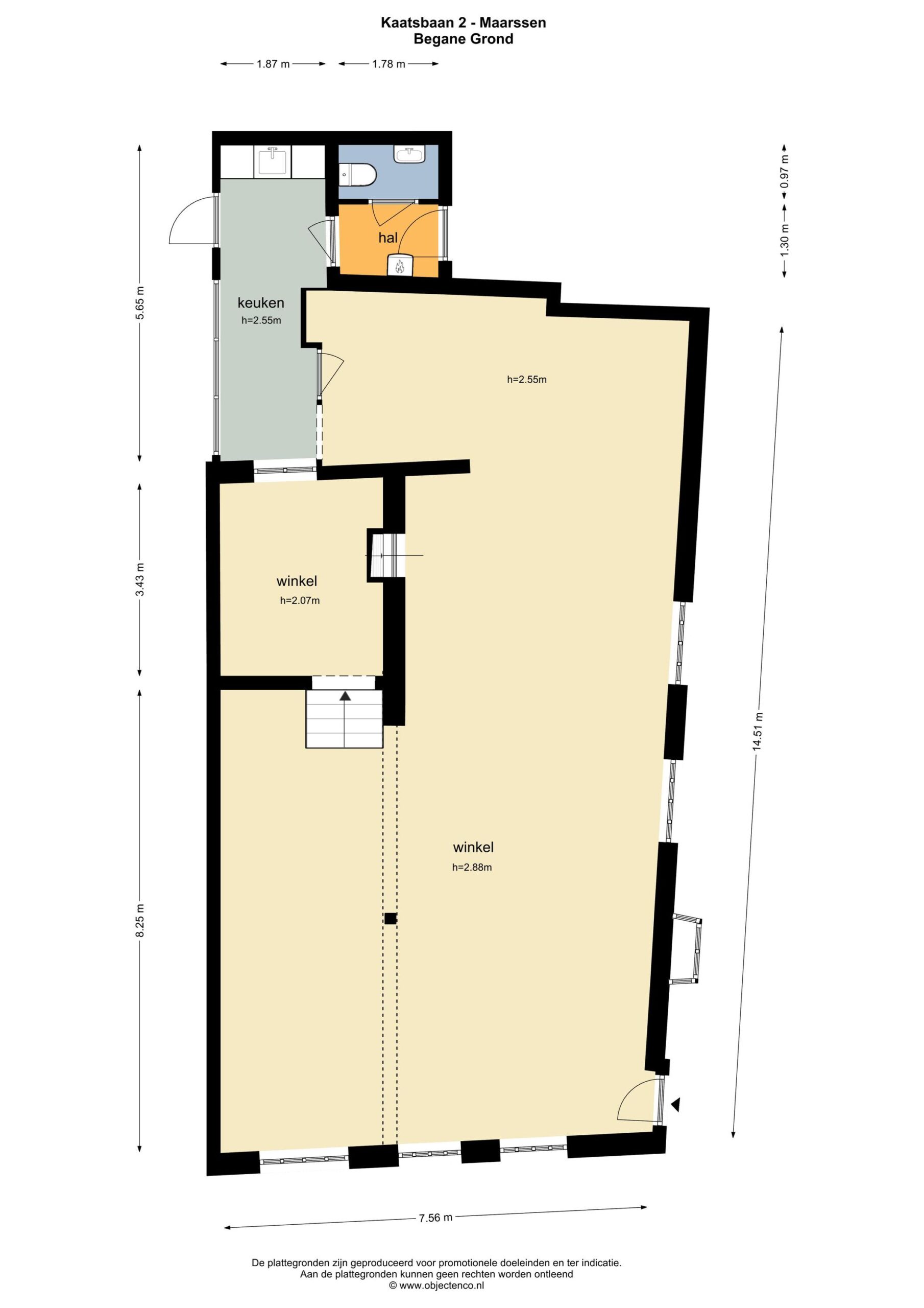
WINKELRUIMTE
De karakteristieke winkelruimte, gelegen aan de Kaatsbaan 2, bevindt zich op de begane grond en heeft een oppervlakte van circa 131 m², met daarnaast een kleine kelder van circa 10 m². De ruimte is bestemd voor detailhandel (met winkelondersteunende horeca), dienstverlening of…

lees meer

Kenmerken

  • Soort object Winkelruimte
  • Status Te koop
  • Totale oppervlakte 141 m2
Meer kenmerken

Vragen of opmerkingen?

Neem vrijblijvend contact op met Jeroen van der Wal.

Brochure aanvragen?

Vul onderstaande gegeven in en download de brochure van dit object.

    Deel dit bedrijfspand:

    Omschrijving

    Op een van de mooiste locaties aan de Vecht, in het hart van Maarssen-Dorp, bevindt zich dit rijksmonumentale woon-/winkelpand. Het pand is gelegen op de hoek van de Kaatsbaan en Herengracht.

    WINKELRUIMTE
    De karakteristieke winkelruimte, gelegen aan de Kaatsbaan 2, bevindt zich op de begane grond en heeft een oppervlakte van circa 131 m², met daarnaast een kleine kelder van circa 10 m². De ruimte is bestemd voor detailhandel (met winkelondersteunende horeca), dienstverlening of maatschappelijke voorzieningen met een publieksgericht karakter (baliefunctie).

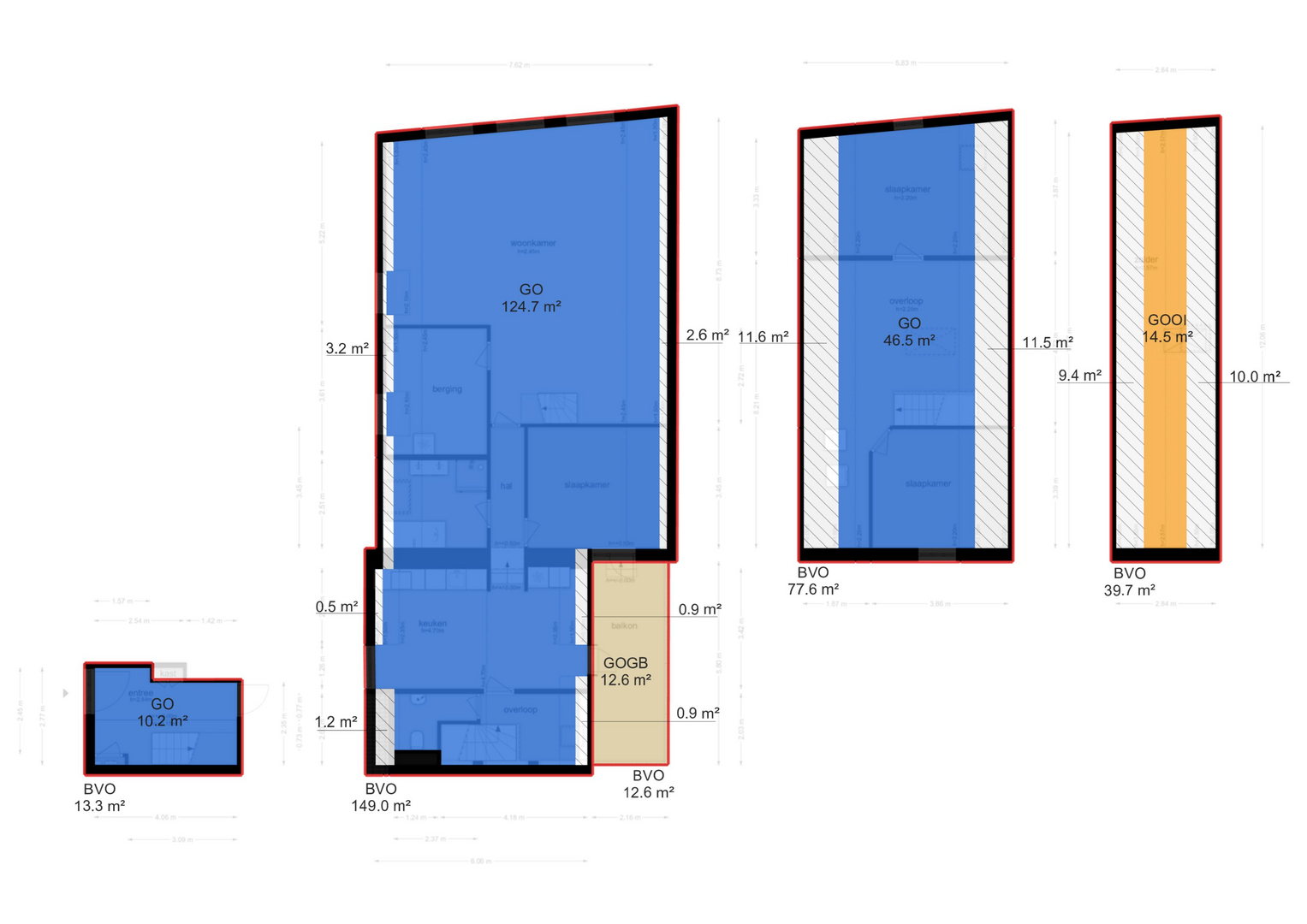
    BOVENWONING
    De royale bovenwoning van ca. 181 m² gelegen aan de Kaatsbaan 2a, beschikt over een eigen opgang en een schitterend uitzicht over de Vecht. De woning kenmerkt zich door een lichte en ruime woonkamer met authentieke details zoals het balkenplafond en zichtbare spanten.

    LIGGING
    Het pand is gelegen in een levendige winkelstraat met een divers aanbod aan winkels, speciaalzaken, horecagelegenheden en terrassen. In de directe omgeving zijn onder andere de HEMA, Kruidvat, Juwelier Berk, Zuivelhandel Ros, Play Fair Casino en Bruna gevestigd.

    INDELING
    Begane grond: Entree/hal met trapopgang naar de eerste verdieping.
    1e Verdieping: Entree/hal, Toilet, ruime woonkeuken met keukenblok voorzien van inbouwapparatuur en toegang tot het dakterras, lichte woonkamer met uitzicht op de Vecht, voorzien van balkenplafond en zichtbare spanten. Twee slaap-/werkkamers. Complete badkamer met ligbad, douchecabine en dubbele wastafel.
    2e verdieping: 2 slaapkamers met een grote overloop/hobbyruimte
    3e verdieping: grote zolder

    FRONTBREEDTE
    De frontbreedte van de winkelruimte aan de Kaatsbaan is circa 14 meter, en langs de Herengracht circa 7 meter.

    OPPERVLAKTE
    Het totale object heeft een bruto vloeroppervlak van circa 448 m² bvo,
    als volgt verdeeld:
    Winkelruimte
    De winkelruimte heeft een bruto vloeroppervlak van circa 156 m²
    en een verhuurbaar vloeroppervlak van circa 141 m².
    Bovenwoning
    De bovenwoning heeft een bruto vloeroppervlak van circa 292 m².
    Het gebruiksoppervlak bedraagt circa 181,4 m², met circa 14,5 m² overige inpandige ruimte en circa 12,6 m² gebouwgebonden buitenruimte. Metrage conform NEN2580 meetrapport

    BEREIKBAARHEID EIGEN VERVOER
    De bereikbaarheid is zowel met eigen als openbaar vervoer goed te noemen. De Straatweg biedt via de Zuilense Ring direct aansluiting op uitvalswegen als de A2 en de A27, waardoor verkeer van en naar alle richtingen zeer gunstig is.

    HET OPENBAAR VERVOER
    Op geringe afstand bevindt zich de bushalte waar diverse buslijnen stoppen. Hiervandaan is het NS-station Maarssen in circa 7 minuten te bereiken.

    PARKEREN
    Vrij parkeren is mogelijk langs de openbare weg en/of nabijgelegen openbare parkeerterreinen.

    OPLEVERINGSNIVEAU EN VOORZIENINGEN
    Het object zal schoon en ontruimd, in de huidige staat worden opgeleverd met de volgende voorzieningen:
    Winkel
    - Tegel- en parketvloer op de bovenkamer
    - Toiletruimte
    - Pantry
    - Nooduitgang
    - Eigen meterkast met aansluiting op gas, water en elektra
    - Airco;
    - Rolluiken
    - Houten kasten langs alle wanden
    - Verlichtingsarmaturen
    - Buitenplaats met overkapping

    Bovenwoning
    - Eigen meterkast met aansluitingen op gas, water, elektra, telefonie en CAI
    - Keukenblok v.v. onder- en bovenkasten, vaatwasser, inductiekookplaat en afzuiging, gootsteen met mengkraan,
    combimagnetron en koelvriescombinatie
    - Tegelvloer in keuken
    - Badkamer v.v. douchecabine en dubbele wastafel met spiegel
    - C.V. ketel (2007) v.v. radiatoren en thermostaat
    - Mechanische ventilatie
    - Deels voorzien van enkelglas, deels van dubbelglas
    - Toilet met fontein
    - Houten vloer in woonkamer
    - Diverse plafonnières
    - Gordijnroede voorzijde woonkamer

    BESTEMMING
    Van toepassing is bestemmingsplan “Maarssen aan de Vecht, partiële herziening”, artikel 5 “Centrum“.
    Het object is derhalve te gebruiken voor:
    - Detailhandel waaronder begrepen winkel ondersteunende horeca: het bedrijfsmatig te koop aanbieden, waaronder begrepen uitstalling ten verkoop, verkopen en/of leveren van goederen aan diegenen die goederen kopen voor gebruik, verbruik of aanwending anders dan in de uitoefening van een bedrijfs- of beroepsactiviteit.
    - Dienstverlening: een (naar openingstijden grotendeels) met een winkel vergelijkbare onderneming die is gericht op het verlenen van diensten aan particulieren, zoals reisbureaus, kapsalons, banken en (para) medische dienstverlening zulks met uitzondering van horecaondernemingen en erotisch getinte horeca.
    - Maatschappelijke voorzieningen met een publieksgericht karakter (baliefunctie): Educatieve, medische, onderwijs-, culturele, levensbeschouwelijke, sport, en recreatieve voorzieningen en overheidsvoorzieningen, zoals een museum en een galerie, alsook ondergeschikte en niet zelfstandige detailhandel ten dienste van deze voorzieningen.
    - Wonen, met dien verstande dat uitsluitend in ruimten boven de begane grondlaag (verdiepingen) één woning is toegestaan,
    al dan niet in combinatie met ruimte voor de uitoefening van aan huis verbonden beroepen dan wel bedrijfsmatige activiteiten aan huis.

    AANVAARDING
    In overleg, vanaf medio oktober 2025.

    RENOVATIES
    2007: Het dakbeschot van de bovenwoning is deels vernieuwd.
    Het gehele dak is boven het beschot vervangen, voorzien van isolatie, waarbij de spanten zijn hersteld en de originele dakpannen zijn teruggelegd. Tevens zijn de badkamer en keuken vernieuwd, zijn alle wanden gestuct en geschilderd, is het wapen in de trapgevel opnieuw verguld en zijn de bovenkanten van de trapgevel hersteld.

    2023: De keukenapparatuur is vervangen, de keukendeurtjes en -fronten zijn vernieuwd en er is een nieuwe tegelvloer gelegd.

    Vragen of opmerkingen?

    Neem vrijblijvend contact op met Jeroen van der Wal.

    Brochure aanvragen?

    Vul onderstaande gegeven in en download de brochure van dit object.

      Deel dit bedrijfspand:

      Overdracht

      • Status Te koop
      • Vraagprijs € 1.100.000,- kosten koper
      • Servicekosten -
      • Aanvaarding In overleg

      Bouw

      • Hoofdfunctie Winkelruimte
      • Soort bouw Bestaande bouw
      • Bouwjaar 1650
      • Frontbreedte 1400 cm

      Parkeergelegenheid

      • Parkeerfaciliteiten Vrij parkeren langs de openbare weg of op nabijgelegen openbare parkeerterrein(en).

      Oppervlakten

      • Oppervlakte totaal ca. 141 m2

      Energielabel

      • Energielabel

      Omgeving

      • Ligging

      Bouwtypes

      Bouwtypes

      Bouwnummer

      Status

      Woonoppervlakte

      Kamers

      Prijs

      In de buurt

      Treinstation

      Op 1500 m tot 2000 m

      Bushalte

      Op minder dan 500 m

      Snelweg afrit

      Op 2000 m tot 3000 m

      Supermarkt

      Op minder dan 500 m

        Neem vrijblijvend contact op met ons

        Plan direct een afspraak in of laat je gegevens achter. We nemen snel contact met u op om kennis te maken.

        Contact opnemen Afspraak maken bedrijven
        Waltmann