Maliebaan 80 A

Utrecht

Huurprijs: € 465,- Per maand

Omschrijving

Op de bekende Maliebaan aan de populaire oostkant van de stad Utrecht, tussen de statige panden, ligt de entree van dit industrieel erfgoed. Deze voormalige garage is getransformeerd tot een high-end industrieel kantoorgebouw.

De industriële stijl is duidelijk herkenbaar in het gehele gebouw. Het pand is onder architectuur modern en warm ingericht. U komt binnen in de zeer lichte en stijlvolle entree en via het 'MalieGarage' Café loopt u naar de zeer goed verlichte…

lees meer

Kenmerken

  • Soort object Kantoorruimte
  • Status Te huur
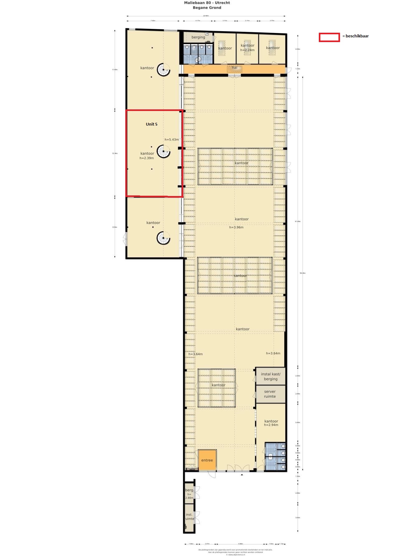
  • Totale oppervlakte 260 m2
  • In units vanaf 5 m2
  • Aantal lagen 2
Meer kenmerken

Vragen of opmerkingen?

Neem vrijblijvend contact op met Joost Steinweg.

Deel dit bedrijfspand:

Omschrijving

Op de bekende Maliebaan aan de populaire oostkant van de stad Utrecht, tussen de statige panden, ligt de entree van dit industrieel erfgoed. Deze voormalige garage is getransformeerd tot een high-end industrieel kantoorgebouw.

De industriële stijl is duidelijk herkenbaar in het gehele gebouw. Het pand is onder architectuur modern en warm ingericht. U komt binnen in de zeer lichte en stijlvolle entree en via het 'MalieGarage' Café loopt u naar de zeer goed verlichte kantoren. Hier kunt u kiezen uit een privé kantoor, de "clusters" (groep van 4 bureau's), de co-working plekken (MalieGarageDesk) en vergaderruimtes.

Het object leent zich voor een mix van werkvormen: van traditioneel kantoorgebruik tot meer open-space kantoorgebruik. Het 'MalieGarage' Café is dagelijks te gebruiken als gemeenschappelijke lunch- en ontmoetingsruimte. Het café is volledig ingericht en voorzien van een Rocket Espresso Milano koffie- & theebar. Wat deze locatie tevens zo uniek maakt is de prachtige, ruime gemeenschappelijke tuin waar u gebruik van kunt maken.

De ‘MalieGarage’ is gelegen nabij het Wilhelminapark en op loopafstand van diverse winkels en horecagelegenheden aan de Nachtegaalstraat en de Burgemeester Reigerstraat.

BEREIKBAARHEID
- Bereikbaarheid met eigen vervoer
De bereikbaarheid van de locatie met de auto is zeer goed. Binnen enkele minuten bent u op de Waterlinieweg die een zeer snelle aansluiting heeft op de snelwegen A2/A12/A27/A28.

- Bereikbaarheid met openbaar vervoer
Op loopafstand van het object zijn diverse bushaltes gelegen met een zeer frequente verbinding naar Utrecht Centraal Station.

PARKEREN
In de directe omgeving voldoende betaalde parkeergelegenheid, eventueel is mogelijk om een zakelijke parkeervergunning aan te vragen bij de Gemeente Utrecht voor parkeren aan de openbare weg.

BESTEMMING
Van toepassing is bestemmingsplan “Wilhelminapark, BuitenWittevrouwen”, en heeft de locatie de enkelbestemming “Gemengd - 4”.Het toegestane gebruik is:
- Kantoren

OPPERVLAKTE
In totaal circa 260 m² verhuurbaar vloeroppervlak en is als volgt verdeeld:
- Per desks: ca. 5 m² per desk
- Per cluster: ca. 49,5 m² per cluster
- Kantoor: ca. 96,58 m² verhuurbaar vloeroppervlak *

De Meetinstructie is gebaseerd op de NEN2580.

HUURPRIJS
- Desk € 465,- per maand
- Clusters € 1.700,- per maand
- Kantoor € 395,- per m² per jaar

HUURTERMIJN
- Desks: huurtermijnen vanaf 3 maanden.
- Clusters: huurtermijn vanaf 1 jaar met een aansluitende verlengingstermijn vanaf 1 jaar, afwijkende huur- en verlengingstermijnen in overleg.
- Kantoorruimte: huurtermijn van 5 jaar met aansluitende verlengingstermijnen van telkens 5 jaar, afwijkende huurtermijnen in overleg.

OPLEVERINGSNIVEAU:
De verschillende ruimtes worden in de huidige uitstekende staat opgeleverd en voorzien van onder andere:
- Kasten en zitjes.
- Vloerbedekking middels gietvloer en vloerkleden.
- WIFI in algemene ruimtes.
- Gebruik vergaderruimte.
- Gezamenlijke entree.
- Gezamenlijke sanitaire voorzieningen.
- Gemeenschappelijke volledig ingerichte moderne keuken en cafe.
- Gemeenschappelijke stadstuin met terras.
- Koffie en thee.
- Klimaatbeheersing.
- Online helpcenter en reserveringssysteem.
- Camerabeveiliging.

SERVICEKOSTEN
= Desks
€ 55,- per desk per maand.

= Clustes en Kantoor
€ 70,00 per m² per jaar, te vermeerderen met omzetbelasting, als verrekenbaar voorschot op basis van nacalculatie, voor de kosten van de navolgende leveringen en diensten:
- Verbruik en vastrecht water, elektra en gas;
- Schoonmaak van algemene, gemeenschappelijke ruimtes;
- Gemeentelijke heffingen (afval/riool e.d.);
- Draadloos internet in de algemene ruimtes;
- Digitaal intercomsysteem inclusief beloptie;
- Onderhoud buitenterrein en tuin;
- Koffie en thee en onderhoud van keukenapparatuur;
- Glasbewassing binnen en buitenzijde;
- Eventueel onderhoud aan installaties e.d. inclusief keuringen;
- Automatisering en camerabeveiliging;
- Eventuele administratiekosten over bovengenoemde leveringen en diensten.

BETALING
Huur, servicekosten te vermeerderen met BTW per maand vooruit.

ZEKERHEIDSTELLING
Een bankgarantie of waarborgsom van 3 maanden huur, servicekosten en BTW

AANVAARDING
Per direct.

Vragen of opmerkingen?

Neem vrijblijvend contact op met Joost Steinweg.

Brochure aanvragen?

Vul onderstaande gegeven in en download de brochure van dit object.

    Deel dit bedrijfspand:

    Overdracht

    • Status Te huur
    • Huurprijs € 465,- per maand
    • Servicekosten € 55,- per maand
    • BTW van toepassing Ja
    • Aanvaarding In overleg

    Bouw

    • Hoofdfunctie Kantoorruimte
    • Soort bouw Bestaande bouw
    • Bouwjaar 1900

    Parkeergelegenheid

    • Parkeerfaciliteiten In de directe omgeving voldoende betaalde parkeergelegenheid.

    Oppervlakten

    • Oppervlakte totaal ca. 260 m2

    Energielabel

    • Energielabel

    Omgeving

    • Ligging Op de bekende Maliebaan aan de oostkant van de stad Utrecht gelegen met een schitterende binnentuin.

    Bouwtypes

    Bouwtypes

    Bouwnummer

    Status

    Woonoppervlakte

    Kamers

    Prijs

    Neem vrijblijvend contact op met ons

    Plan direct een afspraak in of laat je gegevens achter. We nemen snel contact met u op om kennis te maken.

    Contact opnemen Afspraak maken bedrijven
    Waltmann