Omschrijving
Het betreft hier een geschakeld bedrijfspand welke recent intern en extern geheel is gerenoveerd. Het pand bestaat uit een ca. 7 meter hoge bedrijfs-/opslagruimte met 2 elektrische overheaddeuren en een voorgelegen kantoor-/showroom over 2 lagen. Voor het bedrijfspand zijn 12 parkeerplaatsen beschikbaar. Het object is gelegen op bedrijventerrein “De Liesbosch”, ligt ten noordoosten van Nieuwegein en onder Utrecht, gescheiden door de snelweg A12. Het bedrijventerrein is recent aan een grote herindeling onderhevig geweest waarbij de…
lees meerVragen of opmerkingen?
Neem vrijblijvend contact op met Jeroen van der Wal.

Brochure aanvragen?
Vul onderstaande gegeven in en download de brochure van dit object.
Omschrijving
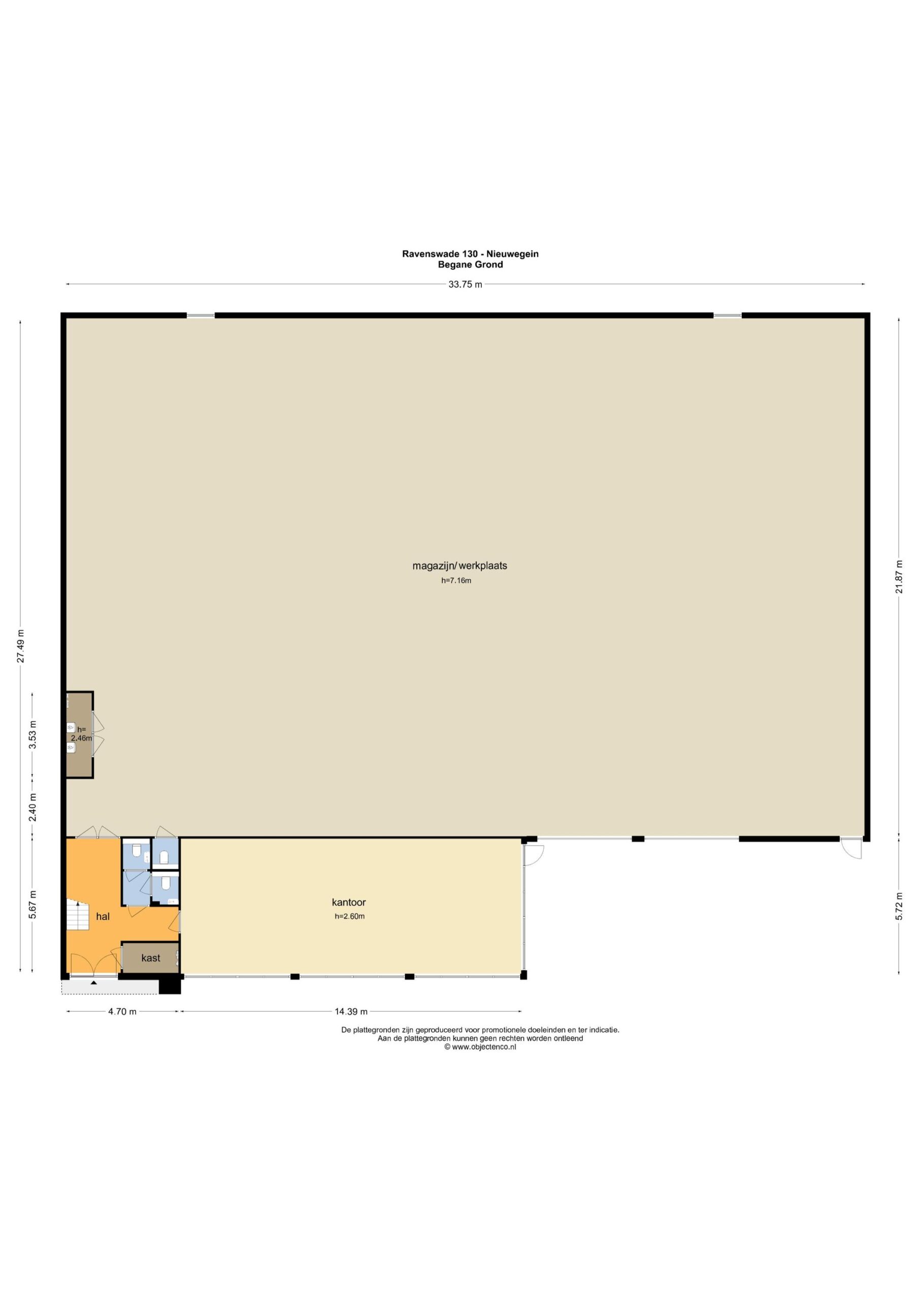
Het betreft hier een geschakeld bedrijfspand welke recent intern en extern geheel is gerenoveerd. Het pand bestaat uit een ca. 7 meter hoge bedrijfs-/opslagruimte met 2 elektrische overheaddeuren en een voorgelegen kantoor-/showroom over 2 lagen. Voor het bedrijfspand zijn 12 parkeerplaatsen beschikbaar.
Het object is gelegen op bedrijventerrein “De Liesbosch”, ligt ten noordoosten van Nieuwegein en onder Utrecht, gescheiden door de snelweg A12.
Het bedrijventerrein is recent aan een grote herindeling onderhevig geweest waarbij de infrastructuur sterk is verbeterd. Zo zijn de toegangswegen verbreed en is er een extra verbindingsweg aangelegd waardoor de doorstroom sterk verbeterd is en het bedrijventerrein nu zeer goed bereikbaar is per auto, openbaar vervoer en fiets.
Op bedrijventerrein "De Liesbosch" is een divers aanbod van bedrijven gehuisvest, waaronder de Hornbach, Hanos, Rexel, McDonald’s en Staples Office Centre. Ook hebben zich hier onlangs Mercedes-Benz Nederland en het nieuwe distributiecentrum van Jumbo Supermarkten gevestigd.
Bereikbaarheid
De Ravenswade is uitstekend bereikbaar met eigen vervoer. Het bedrijvenpark is gelegen in de oksel van het knooppunt Lunetten, met directe aansluiting op de rijksweg A12 (Arnhem-Utrecht-Den Haag) en op geringe afstand van de knooppunten Rijnsweerd (A27/A28) en Oudenrijn (A2/A12). Het centrum van de stad (Hoog Catharijne) en het Centraal Station zijn eveneens op enkele autominuten afstand gelegen.
Het openbaar vervoer
Diverse buslijnen zijn op enkele minuten loopafstand te bereiken, onder andere buslijnen 47, 66 en 247 richting Utrecht (CS), Houten en Nieuwegein.
Oppervlakte
Totaal verhuurbaar vloeroppervlak circa 944 m², verdeeld over:
- circa 735 m² vvo bedrijfs-/opslagruimte begane grond;
- circa 105 m² vvo kantoor-/showroom begane grond;
- circa 105 m² vvo kantoor-/showroom 1e verdieping.
Opleveringsniveau
Het object is volledig gerenoveerd en zal (schoon en ontruimd) worden aangeboden met de volgende voorzieningen:
Algemeen:
- Nieuwe buitengevel, metselwerk en gevelbeplating;
- Nieuwe kozijnen voorzien van zonwerende beglazing;
- Nieuwe alarmcentrale;
- Nieuwe brandmeldcentrale;
- Nieuwe mechanische ventilatie;
- Eigen meterkast voorzien van aansluiting gas, water, elektra en telefonie.
Kantoren/showroom:
- Nieuwe representatieve overluifelde entreepartij met dubbele entreedeuren;
- Entreehal b.g. nieuwe keramische vloerafwerking;
- Enkele entreedeur zijkant begane grond;
- Nieuwe systeemplafonds met ingebouwde LED verlichtingsarmaturen v.v. bewegingssensoren en bandrasters voor scheidingswanden, hoge geluidsabsorptie klasse A, 1e verdieping extra geïsoleerd;
- Nieuw geschilderde binnenwandafwerking;
- Nieuwe Honeywell brandmeldcentrale met rook en brandmelders;
- Nieuwe radiatoren;
- Aansluiting voor pantry;
- Nieuwe kabelgoten voorzien van elektra- en databekabeling;
- (Deels) te openen ramen;
- Nieuw dames- en herentoilet met fontein;
- Houten trap naar verdieping nieuw geschilderd;
- Nieuwe patchkast;
- Nieuwe brandslanghaspel.
Bedrijfsruimte:
Bedrijfsruimte:
- 2 elektrische op afstand bedienbare overheaddeuren met daglichtsecties van circa 4,50 meter hoog x circa 4 meter breed;
- 1 loopdeur voorzijde en 2 vluchtdeuren achterzijde voorzien van inbraakwerende stalen deuren;
- Betonnen vloer glad opgeleverd;
- Vrije hoogte van circa 6 meter cm onder stalen spanten en circa 7,20 meter tot aan dak;
- Verwarming d.m.v. van 3 warmwater gestookte heaters;
- Nieuwe HR gasgestookte ketel;
- Nieuwe Philips Ledinaire High-bay LED verlichtingsarmaturen (Brede tunnel - 100°);
- Nieuw toilet;
- Krachtstroomaansluiting 3 x 63 ampère;
- Nieuwe brandslanghaspel;
- Rook- en/of brandmelders.
Parkeren
12 parkeerplaatsen voor het pand langs de openbare weg.
Bestemming
Ter plaatse vigeert de beheersverordening “De Liesbosch 2013”. De bestemming voor het object betreft:
- Bedrijven, waarbij bedrijven tot en met categorie 4.2 zijn toegestaan;
- Groothandelsbedrijven.
Huurprijs
€ 69.500,- per jaar te vermeerderen met BTW.
Servicekosten
De servicekosten zullen worden berekend op basis van een voorschotbijdrage van 2,50 p/m2 per jaar, per kwartaal vooruit te voldoen te vermeerderen met BTW, van onder andere de volgende leveringen en diensten:
- Instandhouding “Eigen Weg” w.o. riolering (via VVE);
- Onderhoud C.V.-installatie;
- Onderhoud blusapparatuur;
- Onderhoud brandmeld- en alarminstallatie;
- Onderhoud overheaddeuren;
- Glasbewassing buitenzijde;
- 5% administratiekosten over de hierboven genoemde leveringen en diensten.
Huurder is direct zelfstandig contractant van de desbetreffende nutsbedrijven en draagt zorg voor het afsluiten van correcte overeenkomsten.
Zekerstelling
Bankgarantie of waarborgsom ter grootte van drie maanden huur inclusief servicekosten en BTW.
Aanvaarding
In overleg, aanvaarding op korte termijn is mogelijk.
Vragen of opmerkingen?
Neem vrijblijvend contact op met Jeroen van der Wal.

Brochure aanvragen?
Vul onderstaande gegeven in en download de brochure van dit object.
Overdracht
- Status Verhuurd
- Huurprijs € 69.500,- per jaar
- Servicekosten € 3,- per vierkante meter per jaar
- BTW van toepassing Ja
- Aanvaarding In overleg
Bouw
- Hoofdfunctie Bedrijfsruimte
- Soort bouw Bestaande bouw
- Bouwjaar 1978
- Vrije hoogte 600 cm
- Vloerbelasting 1500 kg/m²
Parkeergelegenheid
- Parkeerfaciliteiten Gratis parkeren aan de overzijde van de weg direct voor het gebouw.
- Niet overdekte parkeerplaatsen 12
Oppervlakten
- Oppervlakte totaal ca. 945 m2
- Oppervlakte kantoor ca. 210 m2
- Oppervlakte bedrijfsruimte ca. 735 m2
Energielabel
- Energielabel A+
Omgeving
- Ligging Bedrijventerrein laagraven-liesbosch dichtstbijzijnde halte (bus/tram/metro): nieuwegein, penitentiaire inrichting loopafstand: 0,6 km looptijd: 8 min. dichtstbijzijnde treinstation: utrecht lunetten loopafstand: 3,7 km looptijd: 46 min. de dichtstbijzijnde opritten van de snelweg: a12 op 0,6 km hemelsbreed met 7 min. reistijd over een route van 3,0 km a27 op 3,4 km hemelsbreed met 10 min. reistijd over een route van 7,2 km
Bouwtypes
Bouwnummer
Status
Woonoppervlakte
Kamers
Prijs
Documenten
In de buurt
Treinstation
Bushalte
Snelweg afrit
Supermarkt
Neem vrijblijvend contact op met ons
Plan direct een afspraak in of laat je gegevens achter. We nemen snel contact met u op om kennis te maken.
Contact opnemen Afspraak maken bedrijven