Tijnmuiden 18 A

Amsterdam

Vraagprijs: € 3.650.000,- Kosten koper

Omschrijving

ADRES
Tijnmuiden 18A en 20, 1046 AL te Amsterdam.

OMSCHRIJVING
Twee moderne, geschakelde bedrijfspanden gelegen aan de Tijnmuiden 18A en 20, op bedrijventerrein Sloterdijk III in Amsterdam Nieuw-West.
De objecten omvatten specialistische productie- en logistieke ruimten die bijzonder geschikt zijn voor levensmiddelen gerelateerde (productie-) bedrijven volgens HACCP-richtlijnen. De locatie is voorheen in gebruik geweest als commerciële bakkerij met bijbehorende logistieke activiteiten.

Huisnummer 18A
Dit betreft een bedrijfsobject uit 2000, voorzien van…

lees meer

Kenmerken

  • Soort object Bedrijfsruimte
  • Status Te koop
  • Totale oppervlakte 2.943 m2
Meer kenmerken

Vragen of opmerkingen?

Neem vrijblijvend contact op met Jeroen van der Wal.

Brochure aanvragen?

Vul onderstaande gegeven in en download de brochure van dit object.

    Deel dit bedrijfspand:

    Omschrijving

    ADRES
    Tijnmuiden 18A en 20, 1046 AL te Amsterdam.

    OMSCHRIJVING
    Twee moderne, geschakelde bedrijfspanden gelegen aan de Tijnmuiden 18A en 20, op bedrijventerrein Sloterdijk III in Amsterdam Nieuw-West.
    De objecten omvatten specialistische productie- en logistieke ruimten die bijzonder geschikt zijn voor levensmiddelen gerelateerde (productie-) bedrijven volgens HACCP-richtlijnen. De locatie is voorheen in gebruik geweest als commerciële bakkerij met bijbehorende logistieke activiteiten.

    Huisnummer 18A
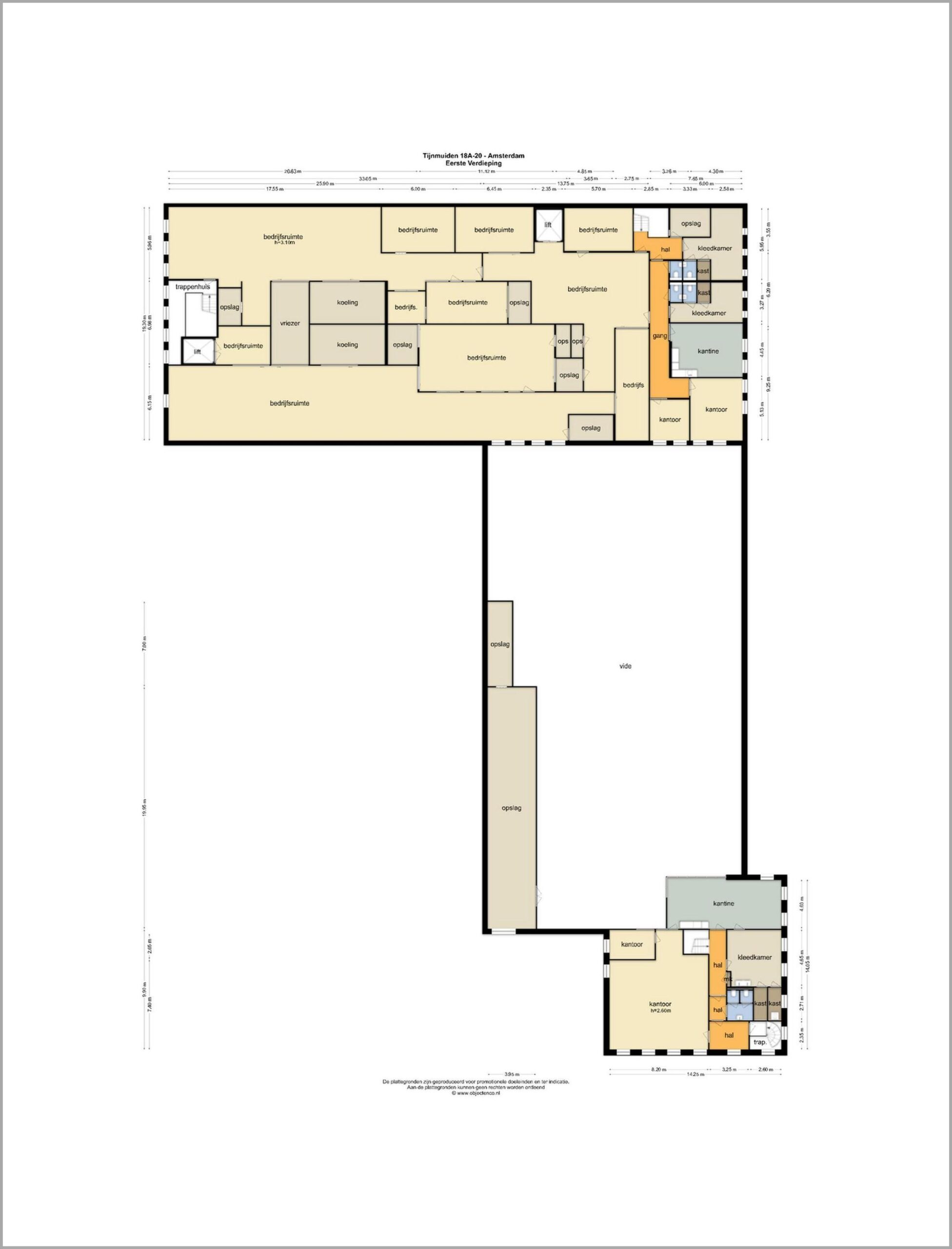
    Dit betreft een bedrijfsobject uit 2000, voorzien van een tweelaags kantoor. De bedrijfsruimte beschikt over tien loadingdocks, waarvan één voorzien is van een dockleveller. De vloerafwerking voldoet aan de HACCP-normen voor de verwerking van voedsel. Het kantoor is verdeeld over twee bouwlagen.

    Huisnummer 20
    Een bedrijfsruimte uit 2010, eveneens uitgevoerd met een HACCP-gecertificeerde vloerafwerking ten behoeve van voedselverwerking. Beide verdieping en (deels) geconditioneerd en het pand beschikt over vier loadingdocks, waarvan één met dockleveller.

    De begane grond doet thans dienst als op- en overslagruimte, en beschikt over geconditioneerde productieruimte met koel- en vriescellen.
    De verdieping is ingericht als personeelsruimte en heeft twee geconditioneerde productieruimten en is volledig voorzien van LED-verlichting, twee goederenliften en diverse koel- en vriescellen.

    Beide bedrijfsruimten zijn op de begane grond via een interne doorgang met elkaar verbonden en worden in een transactie verkocht.

    OPPERVLAKTEN
    Het totale bruto vloeroppervlak bedraagt circa 3.230 m². Het totale verhuurbare vloeroppervlak bedraagt circa 2.943 m².

    Huisnummer 18A heeft een totaal bruto vloeroppervlak (BVO) van circa 1.379 m² en een verhuurbaar vloeroppervlak (VVO) van circa 1.255 m², bestaande uit:
    - ca. 896 m² bedrijfsruimte begane grond
    - ca. 93 m² bedrijfsruimte 1e verdieping
    - ca. 95 m² kantoorruimte begane grond
    - ca. 171 m² kantoorruimte 1e verdieping

    Huisnummer 20 heeft een totaal bruto vloeroppervlak (BVO) van circa 1.852 m² en een verhuurbaar vloeroppervlak (VVO) van circa 1.688 m², bestaande uit:
    - ca. 799 m² bedrijfsruimte begane grond
    - ca. 729 m² bedrijfsruimte 1e verdieping
    - ca. 15 m² kantoorruimte begane grond
    - ca. 145 m² kantoorruimte 1e verdieping

    De Meetinstructie is gebaseerd op NEN2580 meetrapporten. De Meetinstructie sluit verschillen in meetuitkomsten niet volledig uit, door bijvoorbeeld interpretatieverschillen, afrondingen of beperkingen bij het uitvoeren van de meting.

    PARKEREN
    Parkeren is mogelijk langs de openbare weg en op eigen terrein. Voor tien van de loadingdocks is ruimte voor vrachtwagens van circa tien meter. Bij twee van de loadingdocks kunnen grotere vrachtwagens worden gepositioneerd. In de omgeving geldt betaald parkeren in de avond en nacht, van 19.00 uur tot 06.00 uur, met uitzondering van de periode van zaterdag 19.00 uur tot zondag 06.00 uur.

    BESTEMMING
    Van toepassing is o.a. het omgevingsplan gemeente Amsterdam en bestemmingsplan "Sloterdijk III" en de locatie heeft dit bestemmingsplan de bestemming "Bedrijf - 3". De op de plankaart voor Bedrijf - 3 aangewezen gronden zijn bestemd voor:
    - bedrijven die vallen in categorieën 2 tot en met 4 van de bij deze regels deel uitmakende Staat van Inrichtingen Sloterdijk III;
    met daarbij behorende en daaraan ondergeschikte voorzieningen zoals:
    - kantoor- en andere vergelijkbare nevenruimten;
    - bergingen en andere vergelijkbare nevenruimten;
    - laad- en losvoorzieningen;
    - erven;
    - groenvoorzieningen;
    - parkeervoorzieningen;
    - nutsvoorzieningen;
    - ontsluitingswegen en -paden;
    - water;
    - waterstaatkundige voorzieningen;
    - reclame-uitingen;
    - kunstobjecten;
    - infrastructurele voorzieningen;
    - niet-zelfstandige horecavoorzieningen;

    De maximum bouwhoogte bedraagt circa 30 meter. In de erfpachtvoorwaarden is o.a. vermeld dat het percentage kantoor maximaal 30% mag zijn van het aantal gerealiseerde vierkante meters bruto vloeroppervlak.

    Conform de erfpachtvoorwaarden zijn de panden bestemd ten behoeve van:
    - 18 a een broodbakker,
    - 20 een bedrijfsruimte met max 30% kantoor

    Voor de volledigheid verwijzen wij u naar de erfpachtakten en -voorwaaden of het erfpachtloket van de gemeente Amsterdam.

    OPLEVERINGSNIVEAU
    Beide objecten zullen schoon en ontruimd*, in de huidige staat worden opgeleverd met de volgende voorzieningen:
    Tijnmuiden 18A:
    - meterkast voor 18a en 20 met aansluitingen op gas, water, elektra,
    telefonie en glasvezel;
    - HR CV-installatie (2023) voor overige vertrekken;
    - 2e CV-installatie (2013) voor de bedrijfsruimte
    - brandslanghaspels en/of -blussers;
    - noodverlichtingsarmaturen;
    - alarm- en ontruimingsinstallatie
    - betonvloer v.v. coating (HACCP), vloerbelasting circa 10 kN/m²;
    - vrije hoogte circa 5 meter;
    - 10 loadingdocks waarvan 1 met leveller v.v. elektrische deuren
    - koel-/vriescellen incl. motoren
    - gasheaters
    - krachtstroomaansluitingen
    - LED opbouwverlichting;
    - nooduitverlichting
    - 2 x kantine (1 met keukenblok en 1 met kookeiland en luxe keuken)
    - dames- en herentoilet met voorportaal begane grond en 1e verdieping
    - kleedruimte v.v. wasgoot
    - deels v.v. systeemplafonds v.v. Ledverlichting
    - mechanische ventilatie
    - diverse airconditioningunits
    - kabelgoten v.v. elektra en databekabeling
    - aanrijdbeveiliging
    - deels te openen ramen v.v. dubbele beglazing
    - stalen trappen
    - verlichting buitengevel
    - loop en vluchtdeuren
    - HACCP wand- plafond en vloerafwerking

    Tijnmuiden 20:
    - 4 loadingdocks met elektrische deuren, waarvan 1 overdekt en met
    leveller
    - loop- en vluchtdeuren
    - HR CV-installatie v.v. radiatoren
    - boiler
    - brandslanghaspels en/of -blussers;
    - noodverlichtingsarmaturen;
    - alarm- en ontruimingsinstallatie
    - betonvloer v.v. coating (HACCP) en sleufgoten
    - vloerbelasting bg 8,4 kN/m² , verdieping onbekend
    - vrije hoogte circa 4 meter;
    - koel-/vriescellen incl. motoren en vloerverwarming
    - diverse voedingsgerelateerde verwerkings- en productieruimten
    - diverse snelrol- en schuifdeuren
    - gasheater
    - krachtstroomaansluitingen
    - 2 x goederen-/ personenlift
    - vetvangputten
    - nooduitverlichting
    - kantine v.v. keukenblok
    - toilet met voorportaal begane grond
    - dubbel dames- en herentoilet met voorportaal verdieping
    - 2 kleedruimten v.v. dubbele wastafel en spiegel
    - deels v.v. systeemplafonds v.v. (Led-)verlichting
    - mechanische ventilatie
    - diverse airconditioningunits
    - kabelgoten v.v. elektra en databekabeling
    - aanrijdbeveiliging
    - deels te openen ramen v.v. dubbele beglazing
    - HACCP wand- plafond en vloerafwerking
    - camerabeveiliging
    - Hygiënesluis
    - geen eigen meterkast; wordt gevoed vanuit meterkast Tijnmuiden 18A.

    De bakovens zullen worden verwijderd, alsmede losse inventaris zoals RVS- werkbanken.
    * (ontruimd met uitzondering van verhuurde deel op nummer 20)

    AANVAARDING
    In overleg, naar verwachting tussen medio oktober 2026 en mei 2027, op een nader door verkoper vast te stellen datum.

    BEREIKBAARHEID
    Bereikbaarheid met eigen vervoer
    De bereikbaarheid met de auto is uitstekend, mede door de ligging aan de snelweg A5 die de A4 en de A9 met elkaar verbindt. De snelweg A5 heeft een op-/afrit (S103) direct gelegen naast het object. Tevens gelegen nabij de Haarlemmerweg (N200), die aansluit op de rijksweg A9 (Amstelveen-Alkmaar) en de ringweg A10 (afslag S102/S103).

    De dichtstbijzijnde opritten van de snelweg:
    - A5 op 0,2 km hemelsbreed met 1 min reistijd over een route van 0,4 km.
    - A200 op 2,8 km hemelsbreed met 9 min reistijd over een route van 5,1 km.
    - A10 op 4,3 km hemelsbreed met 9 min reistijd over een route van 5,1 km.

    Bereikbaarheid met openbaar vervoer
    Bij het complex ligt een bushalte met een verbinding naar station Sloterdijk.
    Dichtstbijzijnde halte (bus/tram/metro):
    Abberdaan, loopafstand 0,2 km en looptijd ca. 3 minuten.
    Dichtstbijzijnde treinstation: Halfweg-Zwanenburg, loopafstand 2,9 km en looptijd ca. 39 minuten.

    ENERGIELABELS
    Tijnmuiden 18a : label A
    Tijnmuiden 20 : label D

    KADASTER / ERFPACHT
    Tijnmuiden 18a :
    Gemeente Sloten Noord Holland
    Sectie A
    nummer 1487
    groot 1.280 m²
    Voortdurend erfpacht conform algemene bepalingen erfpacht 1994 gemeente Amsterdam.
    Erfpachtperiode tot en met 28-02-2050, Jaarcanon € 21.171,50, Indexatie canon vijf jaarlijks

    Tijnmuiden 20 :
    Gemeente Sloten Noord Holland
    Sectie A
    nummer 1171
    groot 1.000 m²
    Voortdurend erfpacht conform algemene bepalingen erfpacht 2000 gemeente Amsterdam
    Erfpachtperiode tot en met 30-04-2072, Jaarcanon € 16.469,-
    Canonperiode 1-5-2023 tot en met 30-4-2047, Indexatie canon 25 jaarlijks

    Vragen of opmerkingen?

    Neem vrijblijvend contact op met Jeroen van der Wal.

    Brochure aanvragen?

    Vul onderstaande gegeven in en download de brochure van dit object.

      Deel dit bedrijfspand:

      Overdracht

      • Status Te koop
      • Vraagprijs € 3.650.000,- kosten koper
      • Servicekosten -
      • Aanvaarding In overleg

      Bouw

      • Hoofdfunctie Bedrijfsruimte
      • Soort bouw Bestaande bouw
      • Bouwjaar 2000
      • Vrije hoogte 500 cm
      • Vloerbelasting 1000 kg/m²

      Parkeergelegenheid

      • Parkeerfaciliteiten Parkeren is mogelijk langs de openbare weg en op eigen terrein. Voor tien van de loadingdocks is ruimte voor vrachtwagens van circa tien meter. Bij twee van de loadingdocks kunnen grotere vrachtwagens worden gepositioneerd. In de omgeving geldt betaald parkeren in de avond en nacht, van 19.00 uur tot 06.00 uur, met uitzondering van de periode van zaterdag 19.00 uur tot zondag 06.00 uur.

      Oppervlakten

      • Oppervlakte totaal ca. 2.943 m2
      • Oppervlakte kantoor ca. 426 m2
      • Oppervlakte bedrijfsruimte ca. 2.517 m2

      Energielabel

      • Energielabel A

      Omgeving

      • Ligging

      Bouwtypes

      Bouwtypes

      Bouwnummer

      Status

      Woonoppervlakte

      Kamers

      Prijs

      Neem vrijblijvend contact op met ons

      Plan direct een afspraak in of laat je gegevens achter. We nemen snel contact met u op om kennis te maken.

      Contact opnemen Afspraak maken bedrijven
      Waltmann