Veilingweg 18

Bunnik

Vraagprijs: € 329.000,- Kosten koper

Omschrijving

Graag bieden wij deze breed inzetbare, turn-key en duurzame bedrijfsunit (A++) onder de aandacht, gelegen op het bedrijvenpark “De Fruitveiling” in Bunnik. Deze in 2013 gerealiseerde en onder architectuur afgebouwde bedrijfsunit van circa 150 m² b.v.o. is voorzien van 15 zonnepanelen op het dak en heeft drie eigen parkeerplaatsen aan de voorzijde.

Door de volledig glazen pui op de begane grond, met te openen raam kan men ook op de begane grond prettig werken.…

lees meer

Kenmerken

  • Soort object Bedrijfsruimte
  • Status Verkocht
  • Totale oppervlakte 150 m2
Meer kenmerken

Vragen of opmerkingen?

Neem vrijblijvend contact op met Waltmann Makelaars.

Brochure aanvragen?

Vul onderstaande gegeven in en download de brochure van dit object.

    Deel dit bedrijfspand:

    Omschrijving

    Graag bieden wij deze breed inzetbare, turn-key en duurzame bedrijfsunit (A++) onder de aandacht, gelegen op het bedrijvenpark “De Fruitveiling” in Bunnik. Deze in 2013 gerealiseerde en onder architectuur afgebouwde bedrijfsunit van circa 150 m² b.v.o. is voorzien van 15 zonnepanelen op het dak en heeft drie eigen parkeerplaatsen aan de voorzijde.

    Door de volledig glazen pui op de begane grond, met te openen raam kan men ook op de begane grond prettig werken. Beide verdiepingen zijn voorzien voorzien van een nette vloerbedekking, twee zeer volwaardige pantry's, en led-opbouwverlichting. De wanden en plafonds zijn voorzien van geluidsabsorberende panelen.

    De unit bestaat uit twee bouwlagen, met op de begane grond een extra tussenverdieping die perfect is te gebruiken als bijvoorbeeld magazijn en/of showroom (BtoB) met kantoor.

    BEREIKBAARHEID
    Met eigen vervoer
    Het object is gelegen nabij de rijksweg A12 ('s-Gravenhage - Utrecht - Arnhem). Het is circa 10 minuten te berijden vanaf het centrum van Utrecht. Ook is het dichtbij het winkelcentrum van Bunnik (circa 5 min lopen).

    Het openbaar vervoer
    De bedrijfsunit ligt dichtbij het station van Bunnik, hierdoor is de bereikbaarheid per openbaar vervoer ook zeer goed. Een bushalte bevindt zich direct naast de ingang van het bedrijvenpark.

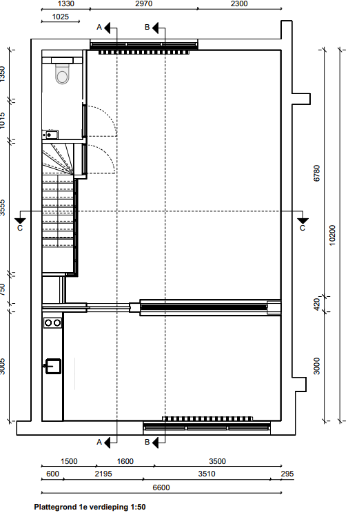
    OPPERVLAKTE
    De totale oppervlakte is circa 150 m² b.v.o., verdeeld over:
    - circa 65 m² b.v.o. bedrijfs-/ontvangstruimte begane grond
    - circa 20 m² b.v.o. opslag tussenverdieping
    - circa 65 m² b.v.o. kantoorruimte 1e verdieping

    Van deze bedrijfsunit is geen NEN 2580 meetcertificaat aanwezig. De vermelde metrages zijn conform opgave architect

    OPLEVERINGSNIVEAU EN VOORZIENINGEN
    De bedrijfsunit zal schoon en ontruimd, in de huidige staat worden opgeleverd met de volgende voorzieningen:
    Kantoor/ontvangst/bedrijfsruimte begane grond:
    - representatieve entree
    - meterkast met eigen meters t.b.v. gas, water, elektra en telefonie (ADSL)
    - laadpaal
    - te openen ramen
    - hardhouten kozijnen v.v. dubbel glas
    - eikenhouten parketvloer
    - diverse elektraputten in de vloer
    - moderne verlichtingsarmaturen v.v. ledverlichting
    - akoestische plafond- en wandplaten
    - pantryblok v.v. wasbak met kraan, onderkastjes, koelkast en vaatwasser
    - verhoogde kantoorruimte v.v. valbeveiliging
    - dubbele toiletruimte met voorportaal
    - diverse wandcontactdozen
    - alarmsysteem
    - rookmelders voor interne meldingen, alsmede gekoppeld aan inbraakinstallatie
    - 15 zonnepanelen v.v. omvormer (Growatt)
    - technische ruimte v.v. CV-ketel en omvormer zonnepanelen
    - brandslanghaspel

    Kantoorruimte 1e verdieping;
    - mechanische ventilatie
    - airco
    - hardhouten kozijnen v.v. dubbelglas aan zowel voor- als achterzijde
    - akoestische wand- en plafondpanelen
    - moderne verlichtingsarmaturen v.v. ledverlichting
    - keukenblok v.v. wasbak met kraan, koelkast, vaatwasser, combimagnetron en inductieplaat met afzuiging
    - glazen tussenwand met archiefkasten en schuifdeur
    - toiletruimte v.v. vrijhangend toilet en wasbak met fontein
    - diverse wandcontactdozen
    - bedrade vloerpotten met elektra en internet aansluitingen

    Buitenterrein
    - verhard middels grove klinkerbestrating;
    - straatverlichting;
    - laadpaal.

    De gehele inventarislijst is bijgesloten bij de projectinformatie, deze is op te vragen bij ons kantoor.

    VVB
    Het object is van rechtswege onderdeel van de actieve Vereniging Beheer Bedrijventerrein "voormalig Veilingterrein Bunnik". De jaarlijkse bijdrage eigenaar van deze VVB bedraagt € 416,10 inclusief BTW en omvat o.a.:
    - onderhoud straatwerk en groenvoorzieningen
    - onderhoud vuilwaterpomp
    - glasheidsbestrijding
    - verenigingskosten
    - schoonmaak terrein
    - gemeenschappelijk verbruik elektra
    - bestuurdersaansprakelijkheid verzekering
    Alle documentatie omtrent deze VVB is op te vragen bij ons kantoor. De VVB beschikt tevens over een positief saldo reservefonds.

    ZONNEPANELEN
    Er zijn 15 zonnepanelen, merk “Canadian Solar” op het dak geplaatst in 2016 van totaal circa 3.975 wp en een Growatt omvormer.

    PARKEREN
    3 eigen parkeerplaatsen recht voor de bedrijfsunit waarvan één parkeerplaats met laadpaal.

    BOUWKUNDIG
    Het object is in 2013 gerealiseerd en gebouwd op een onderheide betonfundering. De gevels bestaan uit metselwerk en zijn voorzien van hardhouten kozijnen met isolerende HR++ beglazing. De begane grondvloer is uitgevoerd in beton en berekend op een draagvermogen van 1.000 kg/m². Het platte dak is afgewerkt met een betonnen dakrand en voorzien van een bitumineuze dakbedekking.

    BESTEMMING
    Ter plaatse is het bestemmingsplan “Dorp Bunnik 2012” van kracht. De bestemming betreft enkelbestemming bedrijventerrein. Ter plaatse zijn bedrijfsactiviteiten toegestaan die staan vermeld in de tot en met categorie 2 van de Lijst van Bedrijfsactiviteiten. Tevens is er een functieaanduiding “Specifieke vorm van kantoor-1” aanwezig.

    NOTARIS
    Ter keuze van koper.

    AANVAARDING
    In overleg, kan spoedig.

    ZEKERHEIDSTELLING
    Er zal door koper een waarborgsom gestort worden ter grootte van 10% van de koopsom, binnen 10 werkdagen na overeenstemming.

    Vragen of opmerkingen?

    Neem vrijblijvend contact op met Waltmann Makelaars.

    Brochure aanvragen?

    Vul onderstaande gegeven in en download de brochure van dit object.

      Deel dit bedrijfspand:

      Overdracht

      • Status Verkocht
      • Aanvaarding In overleg

      Bouw

      • Hoofdfunctie Bedrijfsruimte
      • Soort bouw Bestaande bouw
      • Bouwjaar 2013
      • Vrije hoogte 350 cm
      • Vloerbelasting 1000 kg/m²

      Parkeergelegenheid

      • Parkeerfaciliteiten Drie eigen parkeerplaatsen recht voor de bedrijfsunit waarvan één parkeerplaats met laadpaal
      • Niet overdekte parkeerplaatsen 3

      Oppervlakten

      • Oppervlakte totaal ca. 150 m2
      • Oppervlakte kantoor ca. 65 m2
      • Oppervlakte bedrijfsruimte ca. 85 m2

      Energielabel

      • Energielabel A++

      Omgeving

      • Ligging

      Bouwtypes

      Bouwtypes

      Bouwnummer

      Status

      Woonoppervlakte

      Kamers

      Prijs

      In de buurt

      Treinstation

      Op 1000 m tot 1500 m

      Bushalte

      Op minder dan 500 m

      Snelweg afrit

      Op minder dan 500 m

      Supermarkt

      Op 500 m tot 1000 m

        Neem vrijblijvend contact op met ons

        Plan direct een afspraak in of laat je gegevens achter. We nemen snel contact met u op om kennis te maken.

        Contact opnemen Afspraak maken bedrijven
        Waltmann