De Beaufortweg 8

Austerlitz

Vraagprijs: € 649.500,- Kosten koper Wat worden mijn maandlasten?

Omschrijving

Midden in de bosrijke omgeving van Austerlitz in deze zeer rustige, maar ook erg gezellige straat bieden wij u deze uitgebouwde eengezinswoning aan. Heerlijk wandelen of mountainbiken door de bossen kun je op steenworp afstand doen. Voor de dagelijkse boodschappen zijn er diverse winkels aanwezig, voor meer uitgebreid winkelaanbod kun je gebruik maken van de naastgelegen dorpen Zeist en Driebergen-Rijssenburg.

De woning is gebouwd begin jaren '70, inmiddels is het huis goed geïsoleerd middels…

lees meer

Kenmerken

  • Status Te koop
  • Bouwjaar 1972
  • Woonoppervlakte 133 m2
  • Perceeloppervlakte 150 m2
  • Aantal kamers 5
  • Aantal slaapkamers 4
Meer kenmerken

Vragen of opmerkingen?

Neem vrijblijvend contact op met Rutger Kanters.

Jouw hypotheekadviseur

Reinier Bruin geeft onafhankelijk hypotheekadvies.

Brochure aanvragen?

Vul onderstaande gegeven in en download de brochure van dit object.

    Deel deze woning:

    Omschrijving

    Midden in de bosrijke omgeving van Austerlitz in deze zeer rustige, maar ook erg gezellige straat bieden wij u deze uitgebouwde eengezinswoning aan. Heerlijk wandelen of mountainbiken door de bossen kun je op steenworp afstand doen. Voor de dagelijkse boodschappen zijn er diverse winkels aanwezig, voor meer uitgebreid winkelaanbod kun je gebruik maken van de naastgelegen dorpen Zeist en Driebergen-Rijssenburg.

    De woning is gebouwd begin jaren '70, inmiddels is het huis goed geïsoleerd middels dakisolatie en rondom dubbele beglazing, het energielabel is dan ook C (geldig t/m 11-02-2036). Het onderhoud van de woning is goed te noemen.

    Graag leiden we je door de woning.

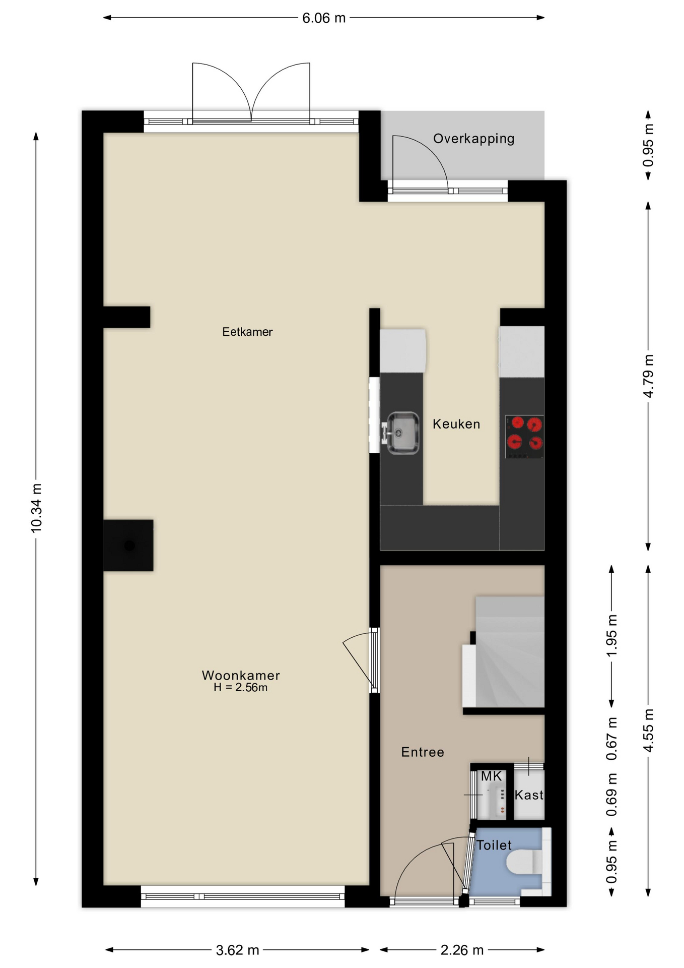
    Begane grond:
    Entree/hal met meterkast, toilet en trapopgang. Riante uitgebouwde woonkamer met PVC-vloer, dubbele openslaande deuren naar de tuin, mogelijkheid houtkachel (is ter overname) en doorgang naar de halfopen keuken. De keuken is in lichte kleurstelling en uitgevoerd in een riante U-opstelling voorzien van granieten werkblad, veel kastruimte en alle inbouwapparatuur: keramische kookplaat, oven, magnetron, afzuigkap, koelkast en vaatwasser.
    Vanuit de keuken is er eveneens toegang tot de zonnige achtertuin. Tuin is afgewerkt met grote, lichte tegels, de berging is sfeervol bekleed met houten panelen. Via de achterom is er ontsluiting naar de openbare weg.

    1e verdieping:
    Overloop met toegang tot 3 ruime slaapkamers alsmede een moderne badkamer. De badkamer is voorzien van vloerverwarming, royale inloopdouche met regendouche, wastafelmeubel en 2e toilet (wandcloset).

    2e verdieping:
    Voorzolder met aansluitingen wasmachine en droger, combiketel (HR uit 2021), grote bergruimte en 4e slaapkamer met aan zowel de voor- als achterzijde een grote dakkapel. Er is in de slaapkamer een ingebouwd bed aanwezig met daarnaast ook ingebouwde kastruimte.

    De afmetingen zijn als volgt:
    Woonkamer: 10.34 x 3.62 m.
    Keuken: 4.79 x 2.26 m.
    Slaapkamer 1: 4.08 x 3.62 m.
    Slaapkamer 2: 3.62 x 3.52 m.
    Slaapkamer 3: 3.05 x 2.30 m.
    Badkamer: 2.52 x 2.30 m.
    Slaapkamer 4: 5.43 x 2.50 m.

    Algemeen:
    * Bouwjaar 1972
    * Energielabel C
    * Gehele woning voorzien van dakisolatie en dubbele beglazing
    * Woonoppervlakte 133 m²
    * Glasvezel aanwezig
    * Aanvaarding in overleg.

    Vragen of opmerkingen?

    Neem vrijblijvend contact op met Rutger Kanters.

    Jouw hypotheekadviseur

    Reinier Bruin geeft onafhankelijk hypotheekadvies.

    Brochure aanvragen?

    Vul onderstaande gegeven in en download de brochure van dit object.

      Deel deze woning:

      Overdracht

      • Status Te koop
      • Vraagprijs € 649.500,- Kosten koper
      • Aanvaarding In overleg

      Bouwvorm

      • Soort woonhuis Tussenwoning
      • Soort bouw Bestaande bouw
      • Bouwjaar 1972
      • Soort dak Zadeldak
      • Onderhoud binnen Goed
      • Onderhoud buiten Goed

      Indeling

      • Aantal kamers 5 kamers
      • Aantal slaapkamers 4
      • Aantal badkamers 1 badkamer
      • Badkamervoorzieningen Toilet, wastafelmeubel, inloopdouche, vloerverwarming
      • Aantal woonlagen 3 woonlagen
      • Voorzieningen Tv kabel, buitenzonwering, rookkanaal, glasvezel kabel

      Energie

      • Energielabel C
      • Isolatie Dakisolatie, dubbel glas
      • Verwarming Cv ketel
      • Warm water Cv ketel
      • C.v.-ketel type Gas
      • C.v.-ketel bouwjaar 2021
      • Eigendom Eigendom

      Buitenruimte

      • Ligging In woonwijk, in bosrijke omgeving
      • Hoofdtuin Achtertuin
      • Oppervlakte hoofdtuin 53 m2
      • Ligging hoofdtuin Zuidoost
      • Achterom 1
      • Kwaliteit tuin Fraai aangelegd

      Bergruimte

      • Schuur / berging Vrijstaand hout
      • Aantal schuren / bergingen 1
      • Voorzieningen Voorzien van elektra

      Parkeergelegenheid

      • Parkeerfaciliteiten Openbaar parkeren
      • Garage Geen garage

      Oppervlakte & Inhoud

      • Gebruiksoppervlakte wonen 133 m2
      • Oppervlakte gebouwgebonden 2 m2
      • Externe bergruimte 10 m2
      • Overige inpandige ruimte -
      • Inhoud 450 m3
      • Perceeloppervlakte 150 m2

      Bouwtypes

      Bouwtypes

      Bouwnummer

      Status

      Woonoppervlakte

      Kamers

      Prijs

      Ligging

      Neem vrijblijvend contact op met ons

      Plan direct een afspraak in of laat je gegevens achter. We nemen snel contact met je op om kennis te maken.

      Afspraak maken Bel mij terug
      Makelaar Utrecht