Eikstraat 11
Utrecht
Vraagprijs: € 499.000,- Kosten koper Wat worden mijn maandlasten?
Omschrijving
In het gezellige Oudwijk staat deze sfeervolle tussenwoning met diepe tuin op het zuidwesten (middag- en avondzon) en vrije ligging aan de achterzijde. Slechts enkele minuten lopen van het prachtige Wilhelminapark en de vele leuke winkels en horeca op de Burg. Reigerstraat en Nachtegaalstraat. Het centrum van Utrecht is eenvoudig per fiets te bereiken.
De Eikstraat zelf is bijzonder rustig en heeft een vriendelijke uitstraling, kindvriendelijk met aan het eind van de straat speeltuin "De…
lees meerKenmerken
- Status Te koop
- Bouwjaar 1920
- Woonoppervlakte 68 m2
- Perceeloppervlakte 72 m2
- Aantal kamers 3
- Aantal slaapkamers 2
Vragen of opmerkingen?
Neem vrijblijvend contact op met Rutger Kanters.

Jouw hypotheekadviseur
Reinier Bruin geeft onafhankelijk hypotheekadvies.

Brochure aanvragen?
Vul onderstaande gegeven in en download de brochure van dit object.
Omschrijving
In het gezellige Oudwijk staat deze sfeervolle tussenwoning met diepe tuin op het zuidwesten (middag- en avondzon) en vrije ligging aan de achterzijde. Slechts enkele minuten lopen van het prachtige Wilhelminapark en de vele leuke winkels en horeca op de Burg. Reigerstraat en Nachtegaalstraat. Het centrum van Utrecht is eenvoudig per fiets te bereiken.
De Eikstraat zelf is bijzonder rustig en heeft een vriendelijke uitstraling, kindvriendelijk met aan het eind van de straat speeltuin "De Bloesem".
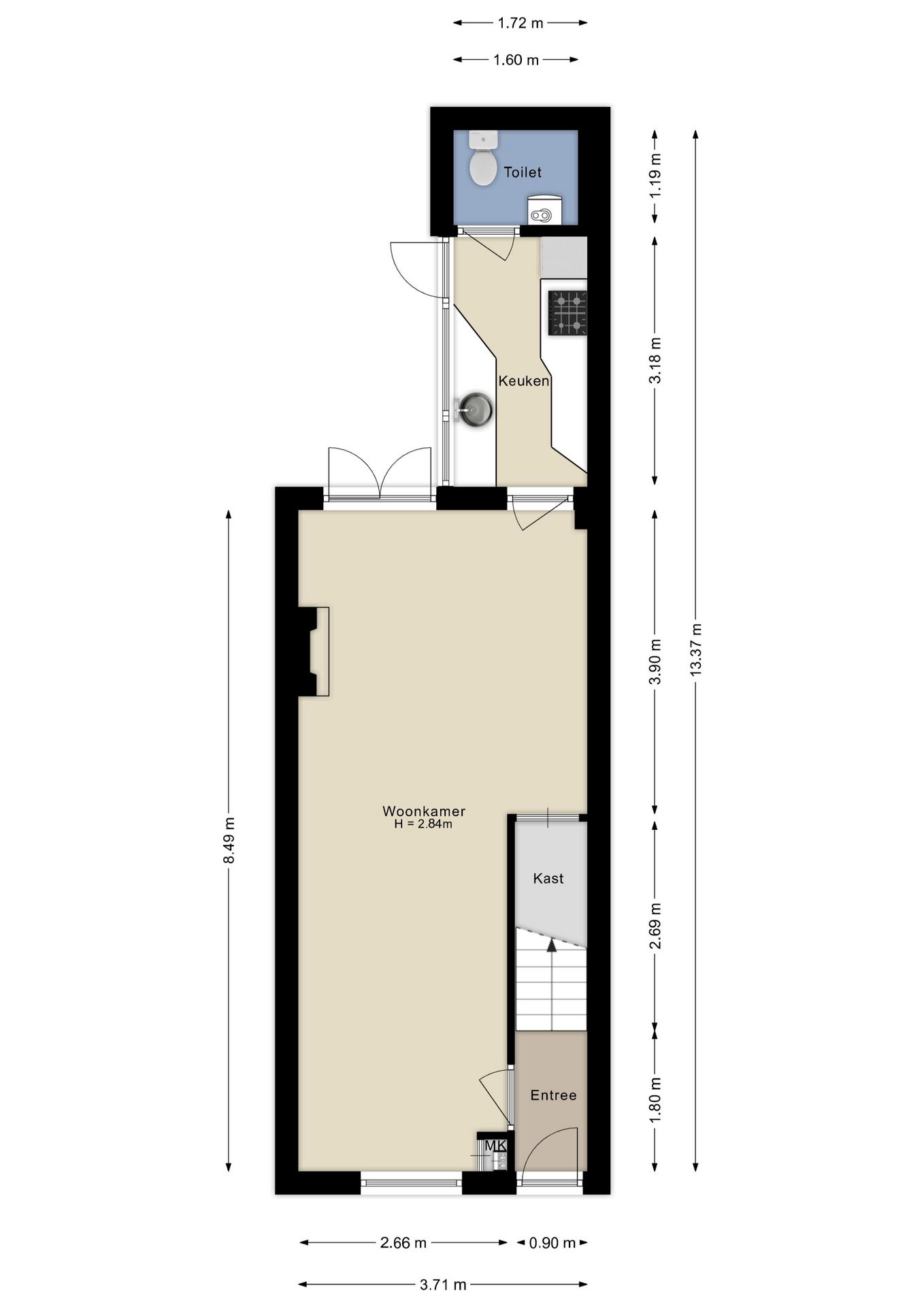
De indeling is als volgt:
Begane grond:
Entree/hal met trapopgang naar de verdieping. Ruime woonkamer in L-vorm met veel licht, openslaande deuren naar de tuin, bergkast onder trapopgang en eiken parketvloer. De keuken is voorzien van keukenblok met granieten werkblad en inbouwapparatuur: gaskookplaat, afzuigkap, combimagnetron, koelkast en vaatwasser. Toilet met tevens de aansluitingen voor wasmachine en droger, opstelplaats van de combiketel.
Vanuit de keuken is er eveneens toegang tot de zeer zonnige en groene tuin.
1e verdieping:
Overloop met ruimte voor een kast, toegang tot 2 grote slaapkamers en er is een vergrootte badkamer met douchecabine, wastafelmeubel en 2e toilet (wandcloset).
2e verdieping:
Middels een vlizotrap is er toegang tot een ruime vliering, perfect voor al je opslag.
Afmetingen zijn als volgt:
Woonkamer: 8.46 x 3.71/2.66 m.
Keuken: 3.18 x 1.72 m.
Slaapkamer 1: 3.71 x 3.18 m.
Slaapkamer 2: 3.71 x 2.95 m.
Badkamer: 2.00 x 1.47 m.
Algemeen:
- bouwjaar 1920
- woonoppervlakte 68 m², eenvoudig uit te bouwen, waarmee woonoppervlakte vergroot kan worden.
- eigen grond 72 m²
- energielabel F
- overal HR+ dubbele beglazing
- er wordt gebruik gemaakt van de NVM-koopovereenkomst, extra clausules worden opgenomen zoals ouderdomsclausule en niet-zelfbewoningsclausule
- aanvaarding in overleg.
Vragen of opmerkingen?
Neem vrijblijvend contact op met Rutger Kanters.

Jouw hypotheekadviseur
Reinier Bruin geeft onafhankelijk hypotheekadvies.

Brochure aanvragen?
Vul onderstaande gegeven in en download de brochure van dit object.
Overdracht
- Status Te koop
- Vraagprijs € 499.000,- Kosten koper
- Aanvaarding In overleg
Bouwvorm
- Soort woonhuis Tussenwoning
- Soort bouw Bestaande bouw
- Bouwjaar 1920
- Soort dak Zadeldak
- Onderhoud binnen Goed
- Onderhoud buiten Goed
Indeling
- Aantal kamers 3 kamers
- Aantal slaapkamers 2
- Aantal badkamers 1 badkamer
- Badkamervoorzieningen Toilet, wastafelmeubel, inloopdouche
- Aantal woonlagen 3 woonlagen
- Voorzieningen -
Energie
- Energielabel F
- Isolatie Dubbel glas
- Verwarming Cv ketel
- Warm water Cv ketel
- C.v.-ketel type Gas
- C.v.-ketel bouwjaar 2011
- Eigendom Eigendom
Buitenruimte
- Ligging In woonwijk
- Hoofdtuin Achtertuin
- Oppervlakte hoofdtuin 43 m2
- Ligging hoofdtuin Zuidwest
- Achterom -
- Kwaliteit tuin Normaal
Bergruimte
- Schuur / berging Vrijstaand steen
- Aantal schuren / bergingen 1
- Voorzieningen Voorzien van elektra
Parkeergelegenheid
- Parkeerfaciliteiten Betaald parkeren, parkeervergunningen
- Garage Geen garage
Oppervlakte & Inhoud
- Gebruiksoppervlakte wonen 68 m2
- Oppervlakte gebouwgebonden -
- Externe bergruimte 3 m2
- Overige inpandige ruimte -
- Inhoud 269 m3
- Perceeloppervlakte 72 m2
Bouwtypes
Bouwnummer
Status
Woonoppervlakte
Kamers
Prijs
Documenten
Ligging
Neem vrijblijvend contact op met ons
Plan direct een afspraak in of laat je gegevens achter. We nemen snel contact met je op om kennis te maken.
Afspraak maken Bel mij terug