Van Koetsveldstraat 10
Utrecht
Vraagprijs: € 1.125.000,- Kosten koper Wat worden mijn maandlasten?
Omschrijving
Zeer royaal, half vrijstaand, herenhuis met een ruime tuin op een uitstekende locatie in de populaire wijk "Nieuw-Engeland" en nabij het "Majellapark".
Deze woning is in 1938 gebouwd als Huisartsenwoning wat de uitzonderlijke breedte van dit object van ca. 8.50 mtr verklaart. Het woonoppervlak is maar liefste 239 m2 (conform Nen-2580) Deze lichte woning heeft zowel een voordeur aan de straat in het midden alsook een zij-ingang voor de patiënten vroeger. Dit object leent…
lees meerKenmerken
- Status Te koop
- Bouwjaar 1938
- Woonoppervlakte 239 m2
- Perceeloppervlakte 201 m2
- Aantal kamers 9
- Aantal slaapkamers 6

Jouw hypotheekadviseur
Reinier Bruin geeft onafhankelijk hypotheekadvies.

Brochure aanvragen?
Vul onderstaande gegeven in en download de brochure van dit object.
Omschrijving
Zeer royaal, half vrijstaand, herenhuis met een ruime tuin op een uitstekende locatie in de populaire wijk "Nieuw-Engeland" en nabij het "Majellapark".
Deze woning is in 1938 gebouwd als Huisartsenwoning wat de uitzonderlijke breedte van dit object van ca. 8.50 mtr verklaart. Het woonoppervlak is maar liefste 239 m2 (conform Nen-2580) Deze lichte woning heeft zowel een voordeur aan de straat in het midden alsook een zij-ingang voor de patiënten vroeger. Dit object leent zich dan ook voor verschillende doeleinden zoals werken/praktijk aan huis of een zeer royale eengezinswoning, maar het geheel kan ook getransformeerd worden tot 2 of 3 appartementen.
Kortom een object als dit komt slechts zelden op de markt.
De ligging is ideaal te noemen aan een ruim opgezette straat in de fijne wijk Nieuw Engeland. Een woonwijk met veel koffietentjes en restaurants. Winkels voor de dagelijkse boodschappen en de levendige Kanaalstraat zijn in de nabije omgeving aanwezig. Het centrum van Utrecht en het Centraal Station bevinden zich op loopafstand. De ligging is daarnaast ook ideaal voor kinderen door de goede scholen en opvang in de buurt.
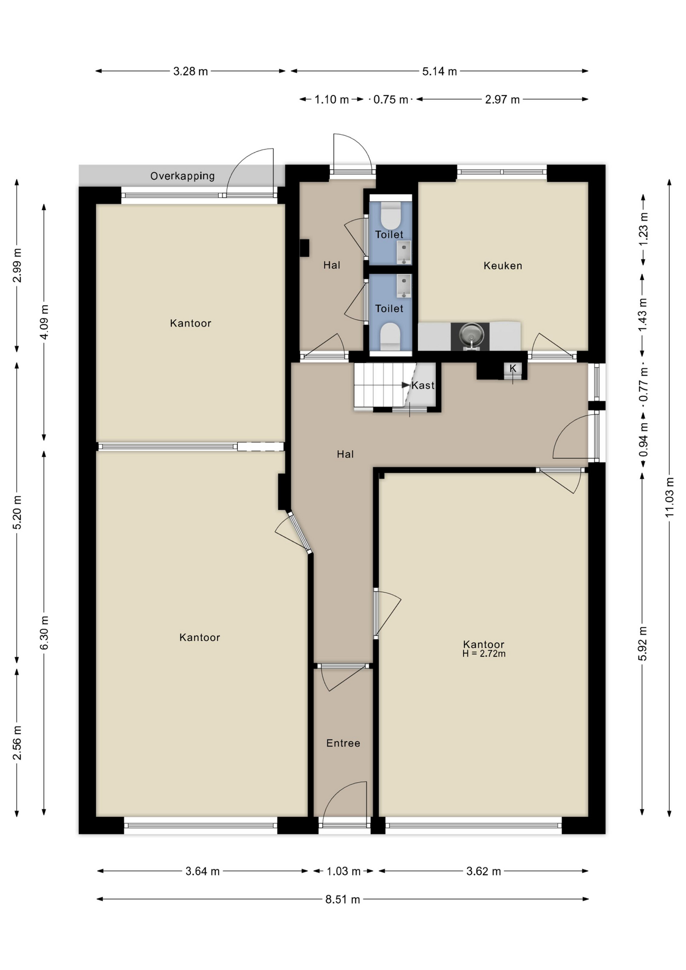
Indeling:
Begane grond: Entree, tochtportaal, gang, 2 toiletten, zijkamer, woonkamer (thans kantoor), eetkeuken, voorzijkamer / kantoor.
1e verd: Overloop, toilet, kamer en suite, zijkamer, badkamer met douche, toilet en wastafel. Aan de achterzijde een balkon over de volle breedte.
2e verd: Overloop met keukenblokje, 2 zeer royale voorkamers met kastruimte en een dakkapel, achterkamer met bergruimte en een dakkapel.
3e verd: Royale bergzolder bereikbaar middels een vlizotrap.
Bijzonderheden:
*Bouwjaar 1938
*Unieke breedte van ca. 8,50 m
*Woonoppervlakte ca. 239 m² (conform NEN-2580; meetrapport ter inzage)
*Twee entrees: ideaal voor wonen/werken of praktijk aan huis
*Ruime tuin
*Eigen grond (geen erfpacht)
*Op 5 minuten fietsen van Centraal Station en de binnenstad
*Aanvaarding in overleg
*Veel gebruiksmogelijkheden, inclusief potentiële transformatie naar 2 of 3 appartementen (uiteraard onder voorbehoud van vergunningen)

Jouw hypotheekadviseur
Reinier Bruin geeft onafhankelijk hypotheekadvies.

Brochure aanvragen?
Vul onderstaande gegeven in en download de brochure van dit object.
Overdracht
- Status Te koop
- Vraagprijs € 1.125.000,- Kosten koper
- Aanvaarding In overleg
Bouwvorm
- Soort woonhuis Halfvrijstaande woning
- Soort bouw Bestaande bouw
- Bouwjaar 1938
- Soort dak Zadeldak
- Onderhoud binnen Goed
- Onderhoud buiten Goed
Indeling
- Aantal kamers 9 kamers
- Aantal slaapkamers 6
- Aantal badkamers - -
- Badkamervoorzieningen -
- Aantal woonlagen 4 woonlagen
- Voorzieningen -
Energie
- Energielabel C
- Isolatie Dakisolatie, muurisolatie, vloerisolatie, dubbel glas
- Verwarming Cv ketel
- Warm water Cv ketel
- C.v.-ketel type Gas
- C.v.-ketel bouwjaar 2024
- Eigendom Eigendom
Buitenruimte
- Ligging Aan rustige weg, in woonwijk
- Hoofdtuin Achtertuin
- Oppervlakte hoofdtuin 60 m2
- Ligging hoofdtuin Noordwest
- Achterom 1
- Kwaliteit tuin Normaal
Bergruimte
- Schuur / berging Vrijstaand steen
- Aantal schuren / bergingen 1
- Voorzieningen -
Parkeergelegenheid
- Parkeerfaciliteiten Openbaar parkeren, betaald parkeren, parkeervergunningen
- Garage Geen garage
Oppervlakte & Inhoud
- Gebruiksoppervlakte wonen 239 m2
- Oppervlakte gebouwgebonden 14 m2
- Externe bergruimte 5 m2
- Overige inpandige ruimte 13 m2
- Inhoud 889 m3
- Perceeloppervlakte 201 m2
Bouwtypes
Bouwnummer
Status
Woonoppervlakte
Kamers
Prijs
Documenten
Ligging
Neem vrijblijvend contact op met ons
Plan direct een afspraak in of laat je gegevens achter. We nemen snel contact met je op om kennis te maken.
Afspraak maken Bel mij terug