Zonnebaan 50

Utrecht

Vraagprijs: € 1.050.000,- Kosten koper

Omschrijving

Op industrieterrein “Lage Weide” aan de Zonnebaan 50 te Utrecht gelegen vrijstaand bedrijfspand bestaande uit 2 bouwlagen. Het pand is voorzien van geconditioneerde bedrijfsruimten, kantoorruimte, kantine, kleedruimten, sanitaire ruimten en voorgelegen verhard buiten-/parkeerterrein.

Het object beschikt over specialistische installaties zoals koelcellen, vriescel en gekoelde verwerkingsruimten. Dit maakt het geheel bij uitstek interessant voor levensmiddelen (HACCP) gerelateerde bedrijven. Tevens is er voor het verticale transport een goederenlift aanwezig

Op het bedrijventerrein zijn bekende ondernemingen gevestigd…

lees meer

Kenmerken

  • Soort object Bedrijfsruimte
  • Status Verkocht
  • Totale oppervlakte 1.187 m2
Meer kenmerken

Vragen of opmerkingen?

Neem vrijblijvend contact op met Jeroen van der Wal.

Brochure aanvragen?

Vul onderstaande gegeven in en download de brochure van dit object.

    Deel dit bedrijfspand:

    Omschrijving

    Op industrieterrein “Lage Weide” aan de Zonnebaan 50 te Utrecht gelegen vrijstaand bedrijfspand bestaande uit 2 bouwlagen. Het pand is voorzien van geconditioneerde bedrijfsruimten, kantoorruimte, kantine, kleedruimten, sanitaire ruimten en voorgelegen verhard buiten-/parkeerterrein.

    Het object beschikt over specialistische installaties zoals koelcellen, vriescel en gekoelde verwerkingsruimten. Dit maakt het geheel bij uitstek interessant voor levensmiddelen (HACCP) gerelateerde bedrijven. Tevens is er voor het verticale transport een goederenlift aanwezig

    Op het bedrijventerrein zijn bekende ondernemingen gevestigd zoals: HEMA, PepsiCo, Kuehne+Nagel, Pouw, PicNic, C. van Heezik transport, UPS en DHL.

    NS station Maarssen en het naastgelegen winkelcentrum Bisonspoor is gelegen op circa 10 autominuten. Het Carlton President Hotel is gelegen op circa 3 autominuten en beschikt over uitgebreide conferentie-, logies- en horecafaciliteiten.

    BEREIKBAARHEID
    Het pand is gelegen nabij één van de belangrijkste snelwegen van Nederland (rijksweg A2) tussen Utrecht en Amsterdam. De op- en afrit van de A2 zijn met enkele autominuten rijden bereikbaar. Met eigen vervoer is het gebouw derhalve via de Zuilense ring (N230) zeer goed te bereiken waarover men tevens binnendoor naar de A27 (Hilversum-Gorinchem) rijdt.

    De dichtstbijzijnde opritten van de snelweg:
    ­- A2 op 0,3 km hemelsbreed met 6 min reistijd over een route van 3,3 km;
    ­- A12 op 4,9 km hemelsbreed met 13 min reistijd over een route van 10,3 km;
    ­- A27 op 7,9 km hemelsbreed met 14 min reistijd over een route van 12,2 km.

    Het openbaar vervoer
    Ook met het openbaar vervoer is de locatie goed bereikbaar.
    De dichtstbijzijnde bushalte: Utrecht, Savannahweg, loopafstand: 0,7 km Looptijd: 9 min. Het dichtstbijzijnde treinstation: Maarssen, Loopafstand: 2,7 km Looptijd: 35 min.

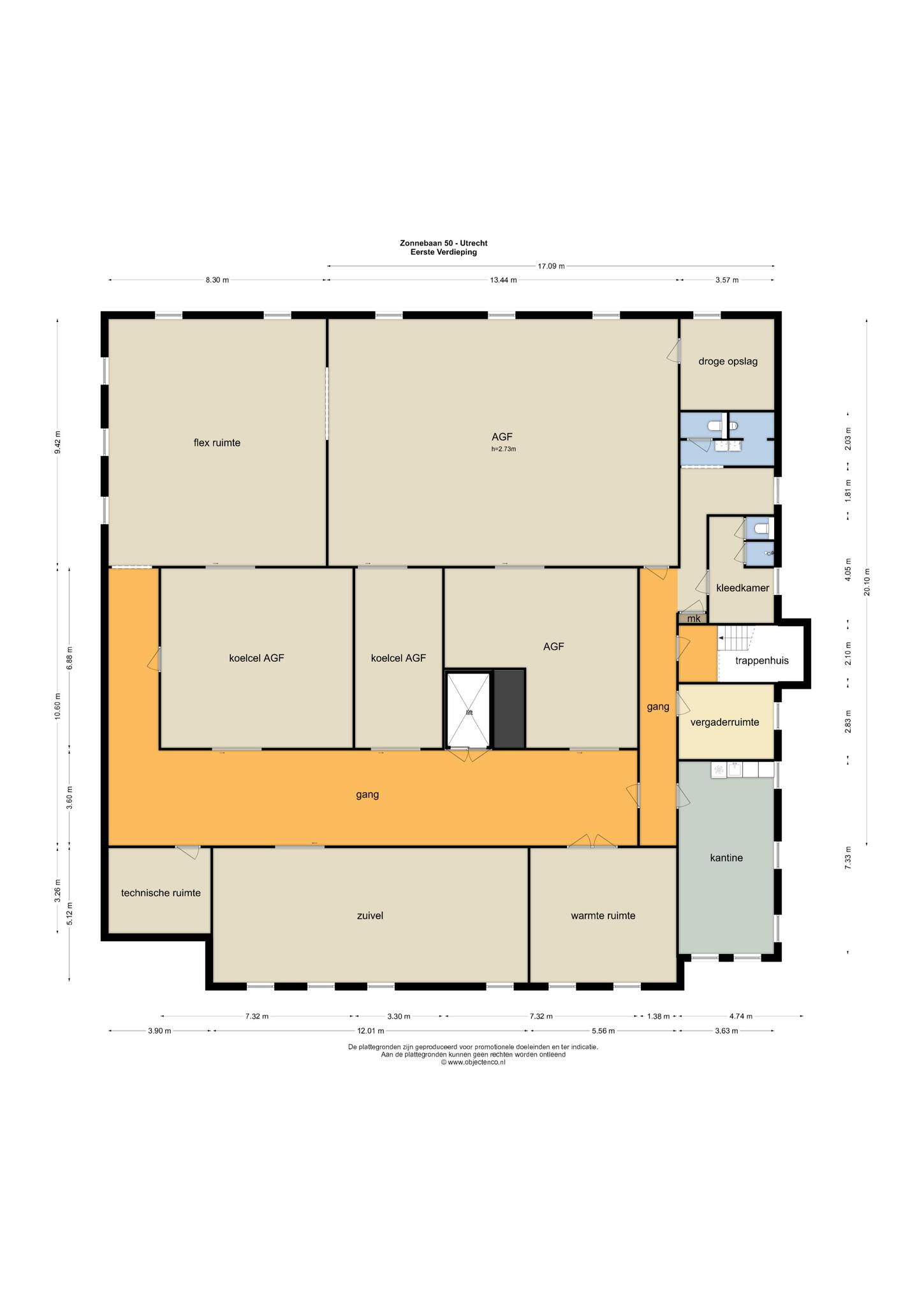
    OPPERVLAKTEN
    Het totaal bruto vloeroppervlak bedraagt ca. 1.393 m². Het verhuurbaar vloeroppervlak ca. 1.263 m² en is als volgt verdeeld:
    ­- circa 557,33 m² bedrijfsruimte begane grond
    ­- circa 567,40 m² bedrijfsruimte 1e verdieping
    ­- circa 61,82 m² kantoor-/kantineruimte
    ­- circa 76,34 m² overdekte buitenopslag *

    Metrage conform NEN2580 meetrapport. * De overdekte buitenopslag is zonder vergunning aangebracht door vertrekkend huurder, en zal indien gewenst verwijderd worden. Deze valt ook buiten de meetstaat.

    OPLEVERINGSNIVEAU EN VOORZIENINGEN
    Het object wordt in de huidige staat “as-is” aangeboden met de volgende voorzieningen:
    - entreedeur begane grond
    - eigen meterkast met aansluitingen op gas G65, water, elektra 175 kVA, telefonie en glasvezel.
    - doucheruimte
    - kantine v.v. pantry op beide bouwlagen
    - dames en herenkleedkamer
    - airconditioning in de kantine
    - 2x Nevit Ecomline HR excellent Combiketel(s) v.v. radiatoren in de kantoren/kantine
    - deels systeemplafonds v.v. inbouwverlichtingsarmaturen in de kantoren
    - mechanische ventilatie
    - deels plavuizen vloer in de kantine/kantoren
    - beveiligingsinstallatie en brandmelders
    - rolluiken (buitenzijde) op de begane grond
    - isolerende en/of zonwerende beglazing
    - epoxyvloer met schrobputten
    - diverse koelcellen v.v. koel-hefschuifdeuren
    - diepvriescel
    - 2 (elektrische) overheaddeuren voorzijde (ca. 3.00 m breed x 2,9 m hoog) met shelters
    - 1 overheaddeur zijgevel
    - tl-opbouwverlichtingsarmaturen
    - was-/toiletruimte
    - krachtstroomaansluitingen
    - goederenlift (afm. 1,60 m x 2,80 m) met circa 2.000 kg hefvermogen
    - bliksembeveiligingssysteem
    - hemelwaterafvoeren en binnenhuisrioleringen
    - kunststof tochtgordijnen
    - brandblusmiddelen
    - noodverlichting
    - weegschaal in vloer
    - diverse watertappunten
    - deels te openen ramen v.v. intern zonewering

    Buitenterrein:
    - deels omheind
    - vetput en een olie/waterscheider
    - terreinverlichting aan buitengevel
    - vluchttrap

    Het object is in de afgelopen jaren verhuurd aan derden. Zaken waargenomen in het object welke niet zijn opgenomen in de bovenstaande lijst kunnen mogelijk door vertrekkend huurder worden verwijderd.

    KOOPPRIJS
    € 1.050.000,- kosten koper.

    ENERGIELABEL
    Betreft label E geldig tot 11 oktober 2033.

    EG Erkenning
    Vertrekkend huurder heeft een EG-Erkenning voor Vis op het pand

    AS IS WHERE IS
    Het object zal "as is, where is" worden verkocht. Derhalve zonder enige verklaring of garanties met betrekking tot de huidige juridische, milieutechnische of fiscale aspecten en zonder garanties over de afwezigheid van gebreken, lasten en/of beperkingen.

    AANVAARDING
    In overleg medio 1 februari 2024.

    Vragen of opmerkingen?

    Neem vrijblijvend contact op met Jeroen van der Wal.

    Brochure aanvragen?

    Vul onderstaande gegeven in en download de brochure van dit object.

      Deel dit bedrijfspand:

      Overdracht

      • Status Verkocht
      • Aanvaarding In overleg

      Bouw

      • Hoofdfunctie Bedrijfsruimte
      • Soort bouw Bestaande bouw
      • Bouwjaar 1987
      • Vrije hoogte 377 cm
      • Vloerbelasting 1500 kg/m²

      Parkeergelegenheid

      • Parkeerfaciliteiten Circa 6 parkeerplaatsen op eigen terrein van circa 148 m² direct voor het pand. Tevens zijn er gratis parkeermogelijkheden in directe omgeving langs de openbare weg.

      Oppervlakten

      • Oppervlakte totaal ca. 1.187 m2
      • Oppervlakte kantoor ca. 62 m2
      • Oppervlakte bedrijfsruimte ca. 1.125 m2
      • Oppervlakte terrein ca. 148 m2

      Energielabel

      • Energielabel E

      Omgeving

      • Ligging

      Bouwtypes

      Bouwtypes

      Bouwnummer

      Status

      Woonoppervlakte

      Kamers

      Prijs

      In de buurt

      Treinstation

      Op 2000 m tot 3000 m

      Bushalte

      Op 500 m tot 1000 m

      Snelweg afrit

      Op 3000 m tot 4000 m

      Supermarkt

      Op 2000 m tot 3000 m

        Neem vrijblijvend contact op met ons

        Plan direct een afspraak in of laat je gegevens achter. We nemen snel contact met u op om kennis te maken.

        Contact opnemen Afspraak maken bedrijven
        Waltmann